Einfamilienhaus: Fertighaus-Familienhaus im klassischen Stil - Daylight-E-144 E3
Daylight-E-144 E3
Hausinfo Daylight-E-144 E3
Das Haus Daylight-E-144 E3 von Danhaus ist ein Familienhaus im klassischen Stil mit einer Fläche von 148,29 m² auf 1,5 Etagen. Die Wohnfläche teilt sich auf 5 Zimmer auf, davon 3 Schlafzimmer.Dieses Einfamilienhaus mit Satteldach wird in der Bauweise Fertighaus errichtet und erfüllt den Energiestandard Effizienzhaus 40-KFN+QNG.
Den Hauspreis erhalten Sie auf Anfrage vom Hersteller.
Der Haushersteller Danhaus mit Sitz in Flensburg/Deutschland ist seit 1978 aktiv.
Danhaus baut Ihr Fertighaus-Traumhaus Daylight-E-144 E3 in den folgenden Bundesländern: Baden-Württemberg, Bayern, Berlin, Brandenburg, Bremen, Hamburg, Hessen, Mecklenburg-Vorpommern, Niedersachsen, Nordrhein-Westfalen, Rheinland-Pfalz, Saarland, Sachsen, Sachsen-Anhalt, Schleswig-Holstein, Thüringen.
Bautafel
| Hausname | Daylight-E-144 E3 |
|---|---|
| Preis | Hauspreis auf Anfrage |
| Bauweise | Fertighaus |
| Dachform | Satteldach |
| Dachneigung | 25° |
| Kniestock | 160 cm |
| Haustyp | Familienhaus |
| Hausstil | Klassisch |
| Verwendung | Einfamilienhaus |
| Energiestandard | Effizienzhaus 40-KFN+QNG |
Preisübersicht
Daylight-E-144 E3
Schlüsselfertig
a.A.
Diesen Preis erfahren Sie auf Anfrage vom Hersteller.
Ausbauhaus
a.A.
Diesen Preis erfahren Sie auf Anfrage vom Hersteller.
Bausatzhaus
-
In dieser Ausbaustufe ist das Haus leider nicht verfügbar.
Jetzt kostenlos Infos zum Haus anfordern!
Wo baut Danhaus das Haus Daylight-E-144 E3?
In den folgenden Bundesländern / Ländern kann das Haus gebaut werden:
Architektur-Bauteile
- Dachüberstand Style L
- Paket Fensterupgrade E3
- Fassadenaufdopplung E3 traufseitig Wohnen
- Fassadenaufdopplung E3 traufseitig Essen
- Fassadenaufdopplung E3 giebelseitig
Energiespar-Standards
- Effizienzhaus 55
- Effizienzhaus 40-KFN
- Effizienzhaus 40-KFN+QNG
Ausbaustufen
- Ausbauhaus
- Technik-Fertig
- Technik-Fertig Plus
- Schlüsselfertig
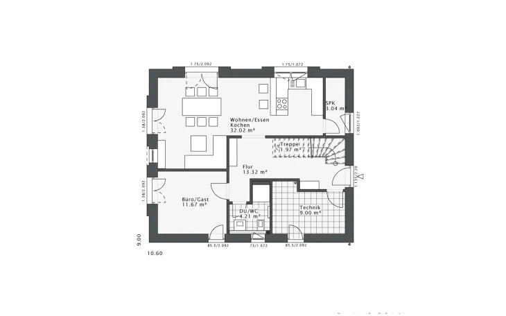
Grundrisse und Hausmaße
| Etagen | 1,5 |
|---|---|
| Zimmer | 5 / 3 Schlafzimmer |
| Nutzfläche | 148,29 m² |
| Abmessungen | 10,60 m x 9,00 m |
Welche Serviceleistungen bietet Danhaus an?
Bauherren erhalten folgende Leistungen von Danhaus:
Weitere Häuser von Danhaus
Danhaus Deutschland GmbH
Stuhrsallee 33
24937 Flensburg
Deutschland
