Landhaus bauen

Für erwachsene Naturliebhaber ist das Leben im Landhaus ebenso ein Traum wie für Kinder, deshalb ist dieser Haustyp heutzutage auch bei jungen Familien sehr beliebt. Ein Landhaus ist stilistisch zwar nicht hundertprozentig festzulegen, doch befindet es sich typischerweise in der Mitte eines recht großen Grundstücks und ist über einen Weg oder eine Auffahrt erreichbar. Wurde der Platz früher zur Tierhaltung genutzt, bietet er heute ausreichend Raum für Gemüsebeete und Obstbäume. Sie sind natürlich kein Muss, unterstreichen aber den Ursprungsgedanken des Landlebens und sorgen für Entschleunigung im Alltag.

Was macht ein Landhaus aus?

Der Name verrät es bereits: Traditionelle Landhäuser finden wir außerhalb von Städten in eher ländlichen Regionen, maximal am Stadt- oder Dorfrand. Sie stehen damit für Naturnähe, Gemütlichkeit und Tradition. Oft sind sie zweigeschossig im Grünen gebaut und gängige Merkmale sind integrierte Gauben, tiefe Vordächer sowie leicht erhöhte Terrassenflächen. Der Einsatz von Sprossenfenstern, gegebenenfalls mit Fensterläden, ist in klassischen Modellen ebenfalls anzutreffen. Die Fassadengestaltung wie auch die Dachform richtet sich ganz nach Ihren Vorlieben und bringt einen bunten Strauß an Möglichkeiten mit sich. Zudem sind Anbauten und Nebengebäude in der Regel problemlos realisierbar – ein echter Hingucker wäre hier beispielsweise eine ausgebaute Scheune neben dem Wohngebäude. Somit sind Landhäuser besonders vielseitig und eignen sich als Erst- oder Zweitwohnsitz, für Familien, alle Fans der Selbstversorgung, die Altersruhe wie gleichermaßen für Kapitalanleger.

Trotz des ländlichen Charmes können Sie sich bei der Planung Ihres Landhauses in Sachen Komfort und moderner Ausstattung voll austoben. Denn ein freistehendes Landhaus ist langlebig, wertbeständig und bietet auf Wunsch höchste Energiestandards bis hin zum ressourcenschonenden Effizienzhaus. Darüber hinaus ist der Baustoff Holz bei fachgerechter Verarbeitung witterungsbeständig und steht für eine wohngesunde Umgebung.
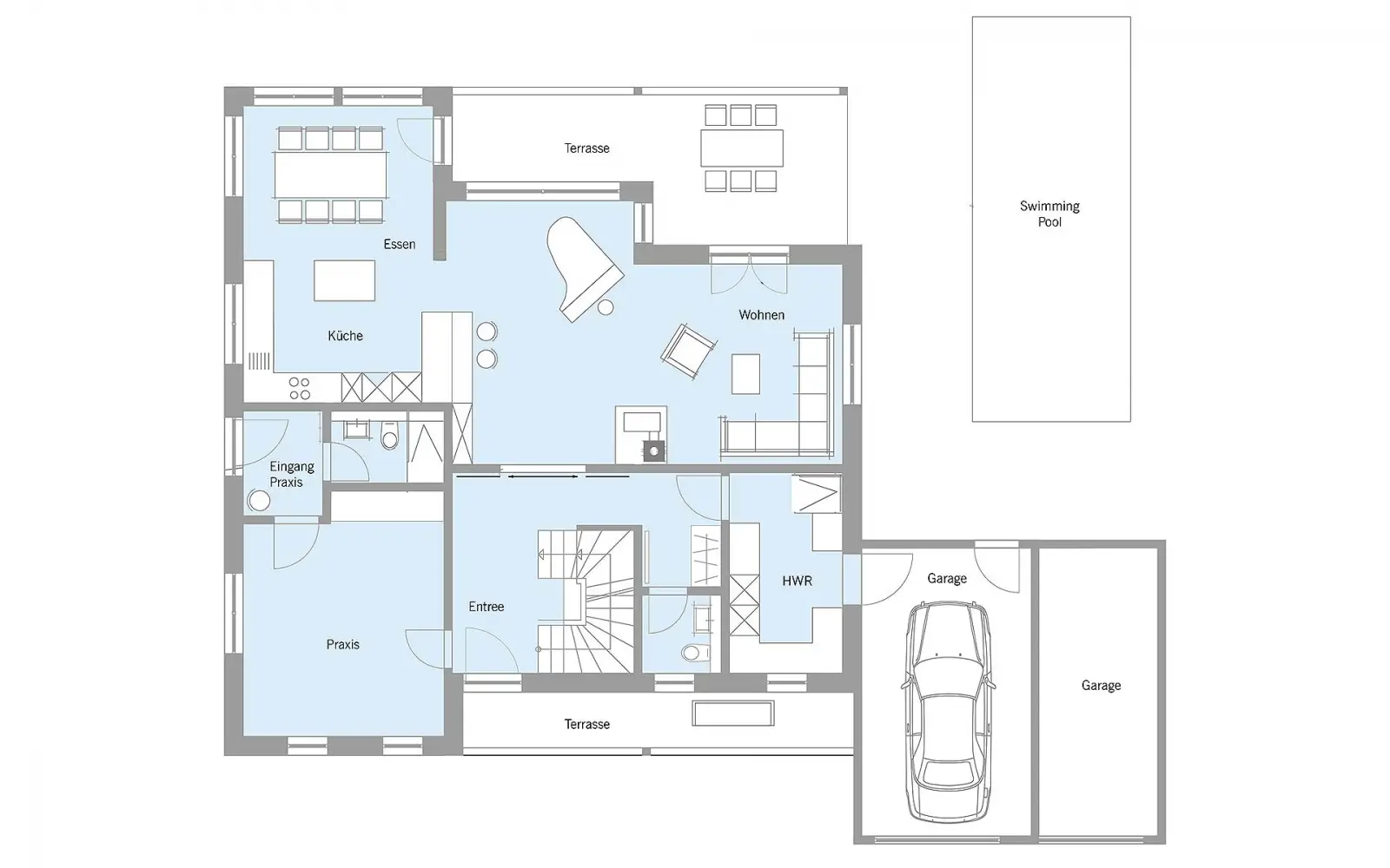
Landhaus Oberbayern von Sonnleitner
Landhaus Oberbayern von Sonnleitner Infos zum Haus

Oberbayern
Landhaus Bruckberg von Regnauer
Landhaus Bruckberg von Regnauer Infos zum Haus

Bruckberg
Landhaus Van Dyck von Baufritz
Landhaus Van Dyck von Baufritz Infos zum Haus

Van Dyck
Landhaus Herrhoff 170 von Holzhaus Rosskopf
Landhaus Herrhoff 170 von Holzhaus Rosskopf Infos zum Haus

Herrhoff 170
Landhaus Kofelblick von Keitel Haus
Landhaus Kofelblick von Keitel Haus Infos zum Haus

Kofelblick
Landhaus Prien von Sonnleitner
Landhaus Prien von Sonnleitner Infos zum Haus

Prien

Wie sieht ein Landhaus aus?

Es gibt mehrere Varianten des Landhausstils, der je nach Land und Region anders ausfällt – sie sehen also nicht überall gleich aus. Beispielsweise sind Landhäuser im skandinavischen Raum meist aus Holz gefertigt, in Norddeutschland hingegen aus Stein. Für Landhäuser an der Nordsee sind außerdem Reetdächer in Kombination mit rotem Backstein oder Klinker charakteristisch. Bewegen wir uns weiter in Richtung Süddeutschland, finden wir eher Landhäuser, die an gemütliche Almhütten der Alpenregion erinnern. Hier kommen häufig weiß verputzte Außenwände mit verspielten Giebeln und sichtbaren Holzkonstruktionen zum Einsatz. In diesen bergigen Regionen spielt das Landhaus seine baulichen Vorteile richtig aus, denn dieser Haustyp ist nicht nur für ebene Flächen geeignet, sondern lässt sich ebenso in Hanglagen problemlos umsetzen.

 

Merkmale von Landhäusern

Trotz der Unterschiede gibt es einige Merkmale, die viele Landhäuser gemeinsam haben: den traditionellen Charme, Sprossenfenster, ein tiefes Vordach über dem Eingang, Gauben und vor allem im südlichen Teil Deutschlands Holzbalkone. Auch freundliche Farben und die Verwendung nachwachsender Rohstoffe wie etwa Holz und Reet sind beinahe überall vertreten.

 

Landhaus Grundriss – eine Auswahl

Im Folgenden finden Sie einige Grundriss-Beispiele für Landhäuser, die Sie jedoch gemeinsam mit dem jeweiligen Haushersteller abwandeln, anpassen oder ganz neu planen
Grundriss Landhaus Diamonds Glücksburg von Danhaus
Landhaus Diamonds Glücksburg von Danhaus

Diamonds Glücksburg
Grundriss Landhaus Flair 134 von Town & Country Haus
Landhaus Flair 134 von Town & Country Haus

Flair 134
Grundriss Landhaus Voss von BAUMEISTER-HAUS
Landhaus Voss von BAUMEISTER-HAUS

Voss
Grundriss Landhaus Sanrit 135 von Holzhaus Rosskopf
Landhaus Sanrit 135 von Holzhaus Rosskopf

Sanrit 135
Grundriss Landhaus Balance 300 von WeberHaus
Landhaus Balance 300 von WeberHaus

Balance 300
Grundriss Landhaus Herrsching von Regnauer
Landhaus Herrsching von Regnauer

Herrsching

Landhaus Dachformen – welche eignen sich am besten?

Auf Landhäusern kommen bevorzugt Satteldächer oder Walm- beziehungsweise Krüppelwalmdächer zum Zuge, da sie den Flair dieses Haustyps besonders gut widerspiegeln und sich den deutschen Witterungsbedingungen optimal anpassen. Gauben sind ein sehr beliebtes Stilelement und schaffen zudem mehr Wohnraum und Platz unter dem Dach.

Landhaus – Neubau oder Bestandsbau?

Die Frage, ob wir ein altes Landhaus abreißen und neu bauen sollten oder ob eine Restaurierung die bessere Alternative ist, stellt sich für viele Häuslebauer beim Kauf eines Grundstücks mit Bestandsimmobilie. Die Antwort hängt in erster Linie von der ursprünglichen Substanz des Gebäudes ab und ist am Ende eine Kostenkalkulation. Ein Neubau hat auf jeden Fall den Vorteil, dass die erforderlichen Energiestandards einfacher erreichbar sind, da Sie von Anfang an auf nachhaltige Baustoffe setzen können. Effektive Wärmedämmungen bei Dach und Fassade sowie der Einsatz erneuerbarer Energien sind jederzeit möglich. Auch haben Sie beim Neubau die freie Wahl der Grundrissgestaltung. Alte Gebäude haben oft kleine, verwinkelte Räumlichkeiten mit niedrigen Decken, die dem modernen Traum vom offenen Wohnen selten gerecht werden.

Fazit: Die Restaurierung in die Jahre gekommener Landhäuser ist bei maroder Substanz oft kostspielig. Am Ende stellt ein Neubau meist die preiswertere Option dar und ist vor allem im Hinblick auf die Grundrissgestaltung, Nachhaltigkeit und die stetig ansteigenden Energiekosten überlegenswert.


 

Vor- und Nachteile von Landhäusern

Da Landhäuser meist außerhalb der direkten Stadtlage angesiedelt sind, ergeben sich gleichermaßen Vor- und Nachteile, die Sie bei Ihrer Entscheidung für oder gegen diese Art des Haustyps gut abwägen sollten. 

Zu den Vorzügen moderner Landhäuser zählen dabei sicherlich das Plätzchen im Grünen mit viel Privatsphäre und die Weitläufigkeit der Gartenanlage. Die nächsten Nachbarn sind ein ganzes Stück weg, also steht hier dem Spielplatz für den Nachwuchs, dem Selbstversorger-Garten oder dem eigenen Pool nichts im Wege. Auch die Haltung größerer Tiere stellt kein Problem dar. Außerdem liegen die Kosten für das Grundstück tendenziell im unteren Preisbereich, was bei den schwindelerregend hohen Grundstückspreisen in Stadtlage unbestritten ein weiterer dicker Pluspunkt ist. 

Tipp: Bei Landhäusern lassen sich wunderbar Einliegerwohnungen anbauen, die sich zur Vermietung als Ferienwohnung eignen und somit zusätzliches Geld in die Kasse spülen. Mit diesen Einnahmen im Rücken lässt sich der Hausbau noch entspannter finanzieren.

Ein negativer Punkt könnten gegebenenfalls die höheren Erschließungskosten sein, sollte das Grundstück keine vorhandene Wasser-/Gas- und Stromversorgung haben. Dieser Faktor fällt bei Flurstücken, die bereits bebaut wurden, allerdings weg. Zudem sollten Sie die Mobilität und die Infrastruktur im Auge haben. Wie weit sind Schulen, Supermärkte, Ärzte und andere Einrichtungen des alltäglichen Bedarfs entfernt und sind sie auch bei längeren Distanzen dauerhaft für Sie erreichbar? Zu guter Letzt möchten wir zu bedenken geben, dass ein großes Grundstück zwar Freude macht und Möglichkeiten zur freien Entfaltung eröffnet, jedoch im Gegenzug einiges an Pflege und Instandhaltung verlangt.

Tipp: Zur Abdeckung der Wasserkosten für die Gartenbewässerung könnten Sie den Bau einer Zisterne oder eines Brunnens in Erwägung ziehen.

 

Inneneinrichtung im Landhausstil

Damit die Inneneinrichtung mit dem äußeren Erscheinungsbild des Gebäudes harmoniert, dominiert auch hier meist der Landhausstil mit typischen Merkmalen wie etwa einem heimeligen Kaminofen für die kälteren Tage, viel Stoffdekorationen und Holzmöbeln – rustikal im Bauernhaus-Look oder freundlich und hell. Dabei ist eine Farbgebung Ton in Ton nicht zwingend nötig, denn manchmal bringt erst ein mutiger Mix den persönlichen Flair in die eigenen vier Wände.
 

Wie viel kostet ein Landhaus?

Die Kosten für ein Landhaus hängen von verschiedenen Faktoren ab. Unter anderem richten sie sich nach der Hausgröße sowie der Ausstattung und sind außerdem von Sonderwünschen abhängig. Grundsätzlich gilt: je ausgefallener die Wünsche, desto teurer. Der Durchschnittspreis liegt für ein klassisches Landhaus als Ausbauhaus bei etwa 190.000 Euro und damit im mittleren Preissegment. Doch sind auch kleine, einfach gehaltene Modelle für den schmaleren Geldbeutel möglich. Bei ausreichend großem Budget gibt es in Sachen Traumhaus-Komfort jedoch kein Limit.

Schauen Sie sich hier eine Auswahl günstiger Landhäuser bis 150.000 € an:
VarioSelf - Musterhaus VarioTwin 127
VarioTwin 127
VarioSelf
Preis auf Anfrage
254,00 m²
VarioSelf - Musterhaus VarioTwin 114
VarioTwin 114
VarioSelf
Preis auf Anfrage
228,00 m²
FischerHaus - Musterhaus Klassisch 142
Klassisch 142
FischerHaus
Preis auf Anfrage
142,00 m²

Wer baut Landhäuser?

Hersteller bieten Landhäuser zur individuellen Planung mit vielen Facetten an. Klassisch als Bauernhof oder im modernen Design – das Angebot ist umfangreich. Schauen Sie sich hier die zahlreichen Modelle der Landhaus-Hersteller mit weiteren Grundrissen, Hausbildern, Einrichtungsbeispielen und den Preisen der verschiedenen Ausbaustufen an. Möchten Sie die unterschiedlichen Stile vom skandinavischen bis zum alpenländischen Landhaus anschließend live und in Farbe bestaunen, besuchen Sie doch eine Musterhausausstellung in der Nähe und erfüllen Sie sich Ihren Wunsch vom idyllischen Eigenheim in ruhiger Umgebung.

Alle Landhäuser in der Übersicht!

Jetzt vergleichen!

0