Bungalow bauen

Das Leben in einem Bungalow spielt sich ebenerdig ab. Die eingeschossigen Gebäude punkten meist mit einem besonders offenen Grundriss, da bei der Planung die Berücksichtigung der Statik von tragenden Wänden für Obergeschosse unnötig ist. Folglich entfallen bei einem Bungalow viele Kosten, die für den Bau eines mehrgeschossigen Hauses auf der Rechnung stehen würden. Das barrierearme Wohnen bietet aber nicht nur finanziell, sondern ebenso in Sachen Komfort Vorteile für jede Generation.

Welche Bungalow-Arten und Ausführungen gibt es?

Ein Bungalow wird typischerweise als Einfamilienhaus erstellt. Es ist jedoch gleichermaßen denkbar, ihn als Doppelhaus zu bauen und damit ein Mehrgenerationenhaus zu ebener Erde aus der Taufe zu heben. Die Bungalow-Grundrisse wie auch die Bauformen bieten dabei einiges an Gestaltungsfreiheit. Die klassische Form eines Bungalows ist zwar nach wie vor rechteckig, doch stehen Winkelbungalows in L-Form, T-Form, Z-Form sowie in U-Form inzwischen ebenfalls hoch im Kurs. Dies erweitert einerseits die Möglichkeiten der Raumaufteilung für offene oder geschlossene Wohnkonzepte, andererseits erschwert es unter Umständen die Umsetzung in Bezug auf Statik und Dachkonstruktion.

Generell ist der Bungalow ein sehr flexibler Haustyp. Denn ändern sich im Laufe der Zeit die Lebensumstände, passt er sich auf Wunsch den neuen Bedürfnissen an. Mehr Wohnraum entsteht beispielsweise durch das Aufsetzen eines weiteren Stockwerks oder durch eine Unterkellerung. Die Erweiterung zu einem Bungalow mit Garage, einem Bungalow mit Einliegerwohnung oder mit separaten Arbeitsbereichen ist bei ausreichend vorhandener Grundstücksgröße im Nachhinein meist unkompliziert umsetzbar.

Selbstverständlich soll neben der Bauform auch die Optik des äußeren Gewands stimmen. In Zeiten des Klimawandels ist der Baustoff Holz aufgrund von Nachhaltigkeit und Energieeffizienz unaufhaltsam auf dem Vormarsch. Er verspricht ein wohngesundes Lebensgefühl und dichtet das Haus in Kombination mit modernen Materialmischungen besonders gut ab. Egal, ob Sie am Ende weiße, anthrazitfarbene oder bunte Außenwände bevorzugen, eine Holzverkleidung oder einen individuellen Mix aus allem – hier finden Sie den richtigen Hersteller für Ihre Bungalow-Träume.
Bungalow Nivelo von Fingerhut Haus
Bungalow Nivelo von Fingerhut Haus Infos zum Haus

Nivelo
Bungalow Bungalow 131 von Town & Country Haus
Bungalow Bungalow 131 von Town & Country Haus Infos zum Haus

Bungalow 131
Bungalow Perfect 120 cube von Danwood
Bungalow Perfect 120 cube von Danwood Infos zum Haus

Perfect 120 cube
Bungalow Edition B 98 von Wolf-Haus
Bungalow Edition B 98 von Wolf-Haus Infos zum Haus

Edition B 98
Bungalow Ausstellungshaus Mannheim Bungalow von WeberHaus
Bungalow Ausstellungshaus Mannheim Bungalow von WeberHaus Infos zum Haus

Ausstellungshaus Mannheim Bungalow
Bungalow Vita Oberrot von Fertighaus WEISS
Bungalow Vita Oberrot von Fertighaus WEISS Infos zum Haus

Vita Oberrot

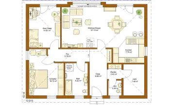
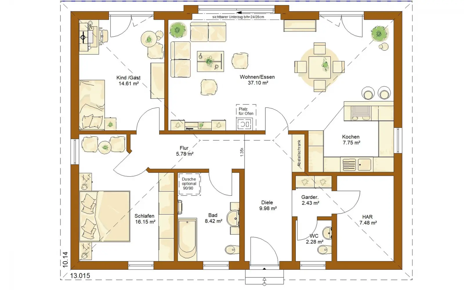
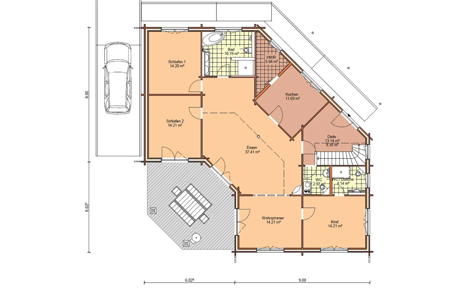
Welcher Bungalow-Grundriss ist der passende?

Der Grundriss eines Bungalows ist in den meisten Fällen offen gestaltet, hängt letztendlich aber von der Form und Größe des Baus ab. Apropos: Welche Hausgröße passt überhaupt aufs Grundstück? Zur Beantwortung dieser Frage hilft ein Blick in den Bebauungsplan. Denn dort ist für jedes Flurstück festgelegt, welchen Abstand das Gebäude von den Nachbargrundstücken haben muss und wie es mit der maximalen Bebauungsfläche aussieht. Bauherren sind also gut beraten, die geltende Regelung vor dem Grundstückskauf abzuklopfen.

Da beim Bungalow ohne Keller der Treppenbau entfällt, steht im Erdgeschoss mehr Platz für die Wohnräume zur Verfügung. Große Fensterfronten sorgen für viel Tageslicht und eine unverbaute Sicht auf den Terrassen- und Gartenbereich. Sie verleihen dem Leben auf einer Ebene damit das Plus an Freiheitsgefühl und lassen die Wohnfläche noch geräumiger erscheinen. Alternativ ist natürlich auch das Konzept abgetrennter Wohnbereiche möglich. Dies bringt mehr Privatsphäre und Rückzugsorte mit sich, bietet dafür aber weniger Bewegungsspielraum und Weite.

Um den für Sie persönlich passenden Schnitt herauszufinden, sollten Sie sich verschiedene Bungalow-Grundrisse anschauen. Im Folgenden finden Sie einige Grundriss-Beispiele, die Sie jedoch gemeinsam mit dem jeweiligen Haushersteller abwandeln, anpassen oder ganz neu planen können. Sie erhalten also alles andere als ein »Haus von der Stange«. Für viele Wünsche haben die Anbieter bereits Musterlösungen parat, die clever geplant und preiswert sind.
Grundriss Bungalow Echach 137 von Holzhaus Rosskopf
Bungalow Echach 137 von Holzhaus Rosskopf

Echach 137
Grundriss Bungalow Valentin von BAUMEISTER-HAUS
Bungalow Valentin von BAUMEISTER-HAUS

Valentin
Grundriss Bungalow Winkelbungalow 108 von Town & Country Haus
Bungalow Winkelbungalow 108 von Town & Country Haus

Winkelbungalow 108
Grundriss Bungalow Perfect 112 von Danwood
Bungalow Perfect 112 von Danwood

Perfect 112
Grundriss Bungalow Ausstellungshaus Mannheim Bungalow von WeberHaus
Bungalow Ausstellungshaus Mannheim Bungalow von WeberHaus

Ausstellungshaus Mannheim Bungalow
Grundriss Bungalow Bungalow 138 von FischerHaus
Bungalow Bungalow 138 von FischerHaus

Bungalow 138

Bungalow mit Keller bauen

Das Stockwerk unter dem Haus bringt zusätzlichen Stauraum und Platz für ein Hobbyzimmer oder den Fitnessbereich. Auch bei einem Bungalow müssen Sie darauf nicht verzichten, wenn die Extrakosten in Ihren Budgetrahmen passen. Je nach Kellertiefe und Grundwasserstand schwanken die Preise stark. Es lohnt sich trotzdem, diese Option bei der Hausplanung checken zu lassen, denn so verdoppeln Sie mit einer einfachen Maßnahme die Wohn- und Nutzfläche Ihres zukünftigen Zuhauses. Die Barrierefreiheit für das Alter ist mit der späteren Nachrüstung eines Treppenlifts ebenfalls gesichert. Kommt eine solche Umrüstung für Sie in Betracht, bedenken Sie das am besten bereits bei der Planung der Kellertreppe, damit sie nicht zu schmal für die nachträgliche Liftinstallation ausfällt.

Welche Dachformen eignen sich für einen Bungalow?

Galt ein Flachdach früher beim Bau eines Bungalows als gesetzt, sind heutzutage die unterschiedlichsten Dachstile denkbar – vom Zeltdach übers Pultdach bis hin zum Walm- oder Satteldach:
 
  • Der Flachdach-Aufbau ist kostengünstig und in verschiedenen Varianten zu haben: Zur Wahl stehen Warmdächer (nicht belüftet), Kaltdächer (belüftet) oder Umkehrdächer (außen liegende Wärmedämmung).
  • Ein Zeltdach besteht aus mindestens drei Dachflächen. Sie haben meist eine flache Dachneigung, sind symmetrisch und laufen an der Spitze zum Firstpunkt zusammen.
  • Einfache Pultdächer bestehen aus einer einzelnen Dachfläche, die jedoch nicht wie bei einem Flachdach gleichmäßig und gerade auf den Gebäudewänden aufliegt, sondern schräg zu einer Seite abfällt.
  • Das Walmdach weist auf allen vier Seiten Schrägen auf. Die Dachfläche erscheint im Verhältnis zur Wohnraumfläche üppig – optisch dominiert sie das Gebäude meist.
  • Ein Satteldach ist der Klassiker des Hausbaus. Es ist langlebig, solide und punktet durch einen vergleichsweise geringen Wartungs- und Instandhaltungsaufwand.


Eine im Vorfeld durchdachte Dachkonstruktion macht eine künftige Erweiterung einfacher. Zum Beispiel, wenn Sie mit dem Gedanken spielen, Ihren Bungalow irgendwann aufzustocken. Pult- oder Satteldächer sind sehr stabil. Sie lassen sich im Rahmen eines Etagenaufbaus abnehmen und anschließend wieder aufsetzen. Kommt solch eine Maßnahme infrage, ist es ratsam, bereits beim Bungalowbau die Statik entsprechend zu berücksichtigen. Fällt die Entscheidung für ein Satteldach, besteht zudem die Möglichkeit, das Eigenheim jederzeit zu einem Bungalow mit Dachausbau nachzurüsten, um noch mehr Wohnraum zu schaffen. Auch das muss nicht direkt im Zuge des Neubaus erfolgen. Ein Bungalow bietet damit die Chance, klein anzufangen und später groß aufzutrumpfen.

Was kostet ein Bungalow?

Auch wenn die Preise je nach Ausstattung variieren, ist dieser normalerweise auf das Erdgeschoss beschränkte Haustyp in jedem Fall preiswerter als ein klassisches, mehrgeschossiges Einfamilienhaus. Die daraus resultierende Materialersparnis wirkt sich ebenso positiv auf die Baukosten aus wie die geringeren Lohnstunden für Facharbeiterinnen und Facharbeiter. Die Ausgaben für das Baugerüst bewegen sich aufgrund der reduzierten Haushöhe gleichermaßen auf niedrigerem Niveau, außerdem sinkt der Bedarf an Fenstern und der Treppenbau entfällt. Das alles macht einen Bungalow selbst für Normalverdiener mit kleinerem Geldbeutel erschwinglich.

Eine weitere Rolle bei der Kostenkalkulation spielt die Größe der Wohnfläche. Da sie im Bungalow bereits bei gut 70 qm2 beginnt, macht sich das natürlich ebenfalls im Preis bemerkbar: Die günstigste Variante ab Oberkante Bodenplatte ohne Keller ist so schon für circa 70.000 € zu haben. Darf es etwas mehr sein? Dann ist dem Wunsch nach viel Platz und Raum zur Entfaltung gegen Aufpreis kaum eine Grenze gesetzt. Für eine Bodenplatte und eine Unterkellerung fallen beispielsweise zusätzlich ungefähr 40.000 € an.

Ein unschätzbarer Vorteil bei der Zusammenarbeit mit einem Anbieter für Bungalow-Fertighäuser ist die finanzielle Planungssicherheit. Denn professionelle Unternehmen haben die anfallenden Kosten für Ihr Traumhaus in jeder Bauphase im Blick und zeigen klar auf, was auf Grundlage des zur Verfügung stehenden Budgets möglich ist und was nicht. So umschiffen Sie Kostenfallen und vermeiden, dass der Finanzplan aus dem Ruder läuft.

Schauen Sie sich hier eine Auswahl günstiger Bungalows bis 150.000 € an:
VarioSelf - Musterhaus VarioCorner 131
VarioCorner 131
VarioSelf
Preis auf Anfrage
131,00 m²
VarioSelf - Musterhaus VarioClassic 106
VarioClassic 106
VarioSelf
Preis auf Anfrage
106,00 m²
massa haus - Musterhaus ComfortStyle 11.02 S
ComfortStyle 11.02 S
massa haus
Preis auf Anfrage
118,00 m²
VarioSelf - Musterhaus VarioCorner 120
VarioCorner 120
VarioSelf
Preis auf Anfrage
120,00 m²
VarioSelf - Musterhaus VarioClassic 124
VarioClassic 124
VarioSelf
Preis auf Anfrage
124,00 m²
Lehner-Haus - Musterhaus Homestory 878
Homestory 878
Lehner-Haus
Preis auf Anfrage
125,00 m²

Der Bungalow als Alternative zur Eigentumswohnung

Die Entscheidung, ob die Wahl auf ein Haus oder eine Eigentumswohnung fällt, ist von den individuellen Wünschen und Bedürfnissen der zukünftigen Bewohner abhängig. Natürlich bringen beide Varianten Vor- und Nachteile mit sich. Doch gerade für Normalverdiener ist der Bungalow unter Umständen eine tolle Alternative. Denn er überzeugt durch eine schnelle und einfache Bauweise, wodurch er erschwinglich wird und preislich oft nicht weit über einer neu gebauten Eigentumswohnung der gleichen Größe liegt. Auch die Lage spielt bei der Abwägung eine wichtige Rolle. So ist der Bau eines Bungalows am Stadtrand oder auf dem Land aufgrund des benötigten Baugrunds wesentlich besser umzusetzen als im städtischen Bereich, wo es kaum noch bezahlbare Flächen gibt. Ob Sie in Ihrem neuen Bungalow mit Hund, Partner, Familie oder als Single leben: In Zeiten von Home-Office und zunehmender Digitalisierung ist das Wohnen abseits des Trubels für viele Menschen zu einer echten Option mit Erholungscharakter geworden – und deshalb eine Überlegung wert.
 

Welche Hersteller bauen Bungalows?

Schauen Sie sich hier die Bungalows verschiedener Hersteller mit Grundrissen, Hausbildern, Einrichtungsbeispielen und den Preisen der unterschiedlichen Ausbaustufen an.

Alle Bungalows in der Übersicht!

Jetzt vergleichen!

0