Einfamilienhaus: Fertighaus-Bungalow im klassischen Stil - Solitaire-B-90 E2
Solitaire-B-90 E2
Hausinfo Solitaire-B-90 E2
Das Haus Solitaire-B-90 E2 von Schwabenhaus ist ein Bungalow im klassischen Stil mit einer Fläche von 91,18 m² auf einer Etage. Die Wohnfläche teilt sich auf 4 Zimmer auf, davon 2 Schlafzimmer.Dieses Einfamilienhaus mit Walmdach wird in der Bauweise Fertighaus errichtet und erfüllt den Energiestandard Effizienzhaus 55.
Der Hauspreis beträgt als Bausatzhaus ab 166.275€. Als Ausbauhaus beginnt der Hauspreis ab 254.253€. Der schlüsselfertige Hauspreis beträgt laut Hersteller ab 292.712€.
Der Haushersteller Schwabenhaus mit Sitz in Heringen (Werra)/Deutschland ist seit 1966 aktiv und hat bisher mehr als 25.000 Häuser für zufriedene Baufamilien gebaut.
Schwabenhaus baut Ihr Fertighaus-Traumhaus Solitaire-B-90 E2 in den folgenden Bundesländern: Baden-Württemberg, Bayern, Berlin, Brandenburg, Bremen, Hamburg, Hessen, Luxemburg, Mecklenburg-Vorpommern, Niedersachsen, Nordrhein-Westfalen, Rheinland-Pfalz, Saarland, Sachsen, Sachsen-Anhalt, Schleswig-Holstein, Thüringen.
Außerhalb Deutschlands kann das Haus in Österreich, Luxemburg, gebaut werden.
Bautafel
| Hausname | Solitaire-B-90 E2 |
|---|---|
| Preis | Bausatzhaus ab 166.275 €
Ausbauhaus ab 254.253 € schlüsselfertig ab 292.712 € |
| Bauweise | Fertighaus |
| Dachform | Walmdach |
| Dachneigung | 22° |
| Haustyp | Bungalow |
| Hausstil | Klassisch |
| Verwendung | Einfamilienhaus |
| Energiestandard | Effizienzhaus 55 |
Preisübersicht
Solitaire-B-90 E2
Schlüsselfertig
Preis ab 292.712 €
Preis entspricht Ausbaustufe: Schlüsselfertig - Preise beziehen sich auf Basishaus - Grafiken und Grundrisse können Extras zeigen
Ausbauhaus
Preis ab 254.253 €
Preis entspricht Ausbaustufe: Fast vollendet - Preise beziehen sich auf Basishaus - Grafiken und Grundrisse können Extras zeigen
Bausatzhaus
Preis ab 166.275 €
Preis entspricht Ausbaustufe: Bau-mit-Haus - Preise beziehen sich auf Basishaus - Grafiken und Grundrisse können Extras zeigen
Jetzt kostenlos Infos zum Haus anfordern!
Wo baut Schwabenhaus das Haus Solitaire-B-90 E2?
In den folgenden Bundesländern / Ländern kann das Haus gebaut werden:
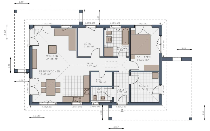
Grundrisse und Hausmaße
| Etagen | 1 |
|---|---|
| Zimmer | 4 / 2 Schlafzimmer |
| Wohnfläche | 91,18 m² |
| Abmessungen | 13,27 m x 8,08 m |
Welche Serviceleistungen bietet Schwabenhaus an?
Bauherren erhalten folgende Leistungen von Schwabenhaus:
Weitere Häuser von Schwabenhaus
Schwabenhaus GmbH
Industriestraße 2
36266 Heringen (Werra)
Deutschland
