Einfamilienhaus: Fertighaus-Bungalow im modernen Stil - Bungalow 142
Bungalow 142
Hausinfo Bungalow 142
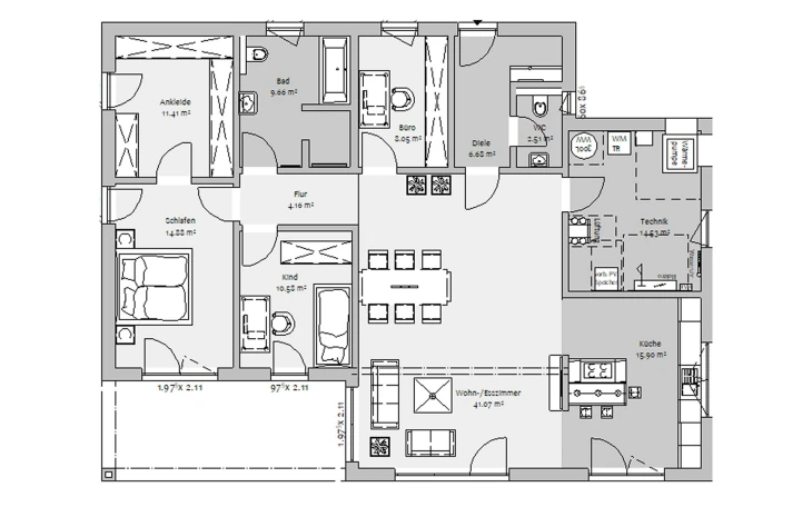
Das Haus Bungalow 142 von FischerHaus ist ein Bungalow im modernen Stil mit einer Fläche von 142,60 m² auf einer Etage. Die Wohnfläche teilt sich auf 4 Zimmer auf, davon 2 Schlafzimmer.Dieses Einfamilienhaus mit Satteldach wird in der Bauweise Fertighaus errichtet und erfüllt den Energiestandard Effizienzhaus 40.
Den Hauspreis erhalten Sie auf Anfrage vom Hersteller.
Der Haushersteller FischerHaus mit Sitz in Bodenwöhr/Deutschland ist seit 1961 aktiv und hat bisher mehr als 13.500 Häuser für zufriedene Baufamilien gebaut.
FischerHaus baut Ihr Fertighaus-Traumhaus Bungalow 142 in den folgenden Bundesländern: Bayern.
Bautafel
| Hausname | Bungalow 142 |
|---|---|
| Preis | Hauspreis auf Anfrage |
| Bauweise | Fertighaus |
| Dachform | Satteldach |
| Dachneigung | 22° |
| Haustyp | Bungalow |
| Hausstil | Modern |
| Verwendung | Einfamilienhaus |
| Energiestandard | Effizienzhaus 40 |
Preisübersicht
Bungalow 142
Schlüsselfertig
a.A.
Diesen Preis erfahren Sie auf Anfrage vom Hersteller.
Alle Angaben laut Hersteller. Fehler oder Änderungen vorbehalten.
Ausbauhaus
a.A.
Diesen Preis erfahren Sie auf Anfrage vom Hersteller.
Alle Angaben laut Hersteller. Fehler oder Änderungen vorbehalten.
Bausatzhaus
-
In dieser Ausbaustufe ist das Haus leider nicht verfügbar.
Jetzt kostenlos Infos zum Haus anfordern!
Wo baut FischerHaus das Haus Bungalow 142?
In den folgenden Bundesländern / Ländern kann das Haus gebaut werden:
Exklusivität auf einer Ebene
Ein Prinzip, das mit einem Bungalow vollkommen aufgeht. Dass man dabei auf nichts verzichten muss, zeigt dieses Beispiel. Bei diesem Baukonzept hält stets ein Gefühl von Offenheit und Losgelassenheit Einzug.Grundrisse und Hausmaße
| Etagen | 1 |
|---|---|
| Zimmer | 4 / 2 Schlafzimmer |
| Wohnfläche | 142,60 m² |
| Abmessungen | 16,64 m x 10,77 m |
Welche Serviceleistungen bietet FischerHaus an?
Bauherren erhalten folgende Leistungen von FischerHaus:
Weitere Häuser von FischerHaus
FischerHaus GmbH & Co. KG
Rathausplatz 4 - 6
92439 Bodenwöhr
Deutschland
