Einfamilienhaus: Fertighaus-Kubushaus im Bauhausstil - Bauhaus 200
Bauhaus 200
Hausinfo Bauhaus 200
Das Haus Bauhaus 200 von FischerHaus ist ein Kubushaus im Bauhausstil mit einer Fläche von 201,07 m² auf 2 Etagen. Die Wohnfläche teilt sich auf 5 Zimmer auf, davon 3 Schlafzimmer.Dieses Einfamilienhaus mit Flachdach wird in der Bauweise Fertighaus errichtet und erfüllt den Energiestandard Effizienzhaus 40.
Den Hauspreis erhalten Sie auf Anfrage vom Hersteller.
Der Haushersteller FischerHaus mit Sitz in Bodenwöhr/Deutschland ist seit 1961 aktiv und hat bisher mehr als 13.500 Häuser für zufriedene Baufamilien gebaut.
FischerHaus baut Ihr Fertighaus-Traumhaus Bauhaus 200 in den folgenden Bundesländern: Bayern.
Bautafel
Hausname | Bauhaus 200 |
---|---|
Preis | Hauspreis auf Anfrage |
Bauweise | Fertighaus |
Dachform | Flachdach |
Haustyp | Kubushaus |
Hausstil | Bauhausstil |
Verwendung | Einfamilienhaus |
Energiestandard | Effizienzhaus 40 |
Preisübersicht
Bauhaus 200
Schlüsselfertig
a.A.
Diesen Preis erfahren Sie auf Anfrage vom Hersteller.
Alle Angaben laut Hersteller. Fehler oder Änderungen vorbehalten.
Ausbauhaus
a.A.
Diesen Preis erfahren Sie auf Anfrage vom Hersteller.
Alle Angaben laut Hersteller. Fehler oder Änderungen vorbehalten.
Bausatzhaus
-
In dieser Ausbaustufe ist das Haus leider nicht verfügbar.
Jetzt kostenlos Infos zum Haus anfordern!

Wo baut FischerHaus das Haus Bauhaus 200?
In den folgenden Bundesländern / Ländern kann das Haus gebaut werden:
Klassischer Bauhausstil
Das Kundenhaus ist typischerweise im Bauhausstil mit einer schlichten Fassade ausgestattet. Zeitlose geometrischen Formen wie der Quader, das Quadrat und das Dreieck stehen dabei im Vordergrund. Durch Kombination dieser einzelnen Bauelemente entstehen neue Formen, die auf praktische Weise miteinander zu einer Einheit verbunden werden.Auch bei der Gestaltung der Wohnfläche steht die Zweckmäßigkeit im Vordergrund. Ein geräumiger Eingangsbereich führt in dezent eingerichtete Räume mit offener Raumgestaltung und einem modernen Charakter.
Im ganzen Haus findet man große Fenster. Sie sorgen dafür, dass viel Licht in das Haus eindringt und geben dem Gebäude eine gewisse Leichtigkeit. Mittelpunkt des Hauses ist die großzügig angelegte Wohnbereich, der zugleich als Esszimmer dient. Das geräumige Wohnzimmer ist nahtlos in den Essbereich integriert und sorgt für ein einheitliches Wohngefühl. Die große Terrasse zum Verweilen an lauen Sommernächten rundet das Hauskonzept perfekt ab.
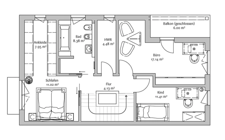
Grundrisse und Hausmaße
Etagen | 2 |
---|---|
Zimmer | 5 / 3 Schlafzimmer |
Wohnfläche | 201,07 m² |
Abmessungen | 13,57 m x 7,39 m |
Welche Serviceleistungen bietet FischerHaus an?
Bauherren erhalten folgende Leistungen von FischerHaus:
Weitere Häuser von FischerHaus

FischerHaus GmbH & Co. KG
Rathausplatz 4 - 6
92439 Bodenwöhr
Deutschland