Einfamilienhaus: Fertighaus-Familienhaus im klassischen Stil - Life Oberrot
Life Oberrot
Hausinfo Life Oberrot
Das Haus Life Oberrot von Fertighaus WEISS ist ein Familienhaus im klassischen Stil mit einer Fläche von 152,00 m² auf 1,5 Etagen. Die Wohnfläche teilt sich auf 4 Zimmer auf, davon 3 Schlafzimmer.Dieses Einfamilienhaus mit Satteldach wird in der Bauweise Fertighaus errichtet und erfüllt den Energiestandard Effizienzhaus 55.
Der schlüsselfertige Hauspreis beträgt laut Hersteller ab 357.000€.
Der Haushersteller Fertighaus WEISS mit Sitz in Oberrot-Scheuerhalden/Deutschland ist seit 1881 aktiv und hat bisher mehr als 6.500 Häuser für zufriedene Baufamilien gebaut.
Fertighaus WEISS baut Ihr Fertighaus-Traumhaus Life Oberrot in den folgenden Bundesländern: Baden-Württemberg, Bayern, Hessen, Rheinland-Pfalz, Saarland.
Bautafel
| Hausname | Life Oberrot | 
|---|---|
| Preis | schlüsselfertig ab 357.000 € | 
| Bauweise | Fertighaus | 
| Dachform | Satteldach | 
| Dachneigung | 38° | 
| Kniestock | 130 cm | 
| Haustyp | Familienhaus | 
| Hausstil | Klassisch | 
| Verwendung | Einfamilienhaus | 
| Energiestandard | Effizienzhaus 55 | 
Preisübersicht
 Life Oberrot
                                Schlüsselfertig
Preis ab 357.000 €
Alle Preise laut Hersteller als "ab"-Preise. Fehler oder Änderungen vorbehalten.
Ausbauhaus
-
In dieser Ausbaustufe ist das Haus leider nicht verfügbar.
Bausatzhaus
-
In dieser Ausbaustufe ist das Haus leider nicht verfügbar.
Jetzt kostenlos Infos zum Haus anfordern!
 
                                    Wo baut Fertighaus WEISS das Haus Life Oberrot?
In den folgenden Bundesländern / Ländern kann das Haus gebaut werden:
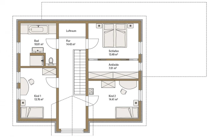
Grundrisse und Hausmaße
| Etagen | 1,5 | 
|---|---|
| Zimmer | 4 / 3 Schlafzimmer | 
| Wohnfläche | 152,00 m² | 
| Abmessungen | 11,00 m x 9,00 m | 
Welche Serviceleistungen bietet Fertighaus WEISS an?
Bauherren erhalten folgende Leistungen von Fertighaus WEISS:
Weitere Häuser von Fertighaus WEISS
 
                        Fertighaus WEISS GmbH
Sturzbergstraße 40-42
74420 Oberrot-Scheuerhalden
Deutschland
 
                                             
                                                 
                                                 
                                                 
                                                     
                                                     
                                                     
                                                    
 
 
 
 
 
 
 
