Einfamilienhaus: Massivhaus- - Arndt
Arndt
Hausinfo Arndt
Das Haus Arndt von BAUMEISTER-HAUS ist mit einer Fläche von 187,50 m² auf 2 Etagen.Dieses Einfamilienhaus mit Satteldach wird in der Bauweise Massivhaus errichtet.
Der Haushersteller BAUMEISTER-HAUS mit Sitz in Frankfurt / Main/Deutschland ist seit 1967 aktiv und hat bisher mehr als 50.000 Häuser für zufriedene Baufamilien gebaut.
BAUMEISTER-HAUS baut Ihr Massivhaus-Traumhaus Arndt in den folgenden Bundesländern: Baden-Württemberg, Bayern, Berlin, Brandenburg, Hessen, Niedersachsen, Nordrhein-Westfalen, Rheinland-Pfalz, Saarland, Sachsen.
Bautafel
| Hausname | Arndt |
|---|---|
| Bauweise | Massivhaus |
| Dachform | Satteldach |
| Dachneigung | 25° |
| Hausstil | _keine Zuordnung |
| Verwendung | Einfamilienhaus |
| Energiestandard | keine Angabe |
Jetzt kostenlos Infos zum Haus anfordern!
Wo baut BAUMEISTER-HAUS das Haus Arndt?
In den folgenden Bundesländern / Ländern kann das Haus gebaut werden:
Baden-Württemberg
Bayern
Berlin
Brandenburg
Hessen
Niedersachsen
Nordrhein-Westfalen
Rheinland-Pfalz
Saarland
Sachsen
Dieses Haus ist ein hervorragendes Beispiel dafür, warum weniger manchmal mehr ist. Denn das reduzierte, modern-puristische Design dieses Hauses ist ein absoluter Hingucker. Die Fassade schlicht, ein Dach ohne Überstand, dafür großflächige Fenster.
Die Abbildung enthält Sonderausstattung. Die Preise verstehen sich inklusive Bodenplatte. Die Bau- u. Leistungsbeschreibung variiert je nach Partnerunternehmen. Die Preise sind Mittelpreise und variieren je nach Ausstattung und Region um ca. 10 %. Stand 05/2013
Die Abbildung enthält Sonderausstattung. Die Preise verstehen sich inklusive Bodenplatte. Die Bau- u. Leistungsbeschreibung variiert je nach Partnerunternehmen. Die Preise sind Mittelpreise und variieren je nach Ausstattung und Region um ca. 10 %. Stand 05/2013
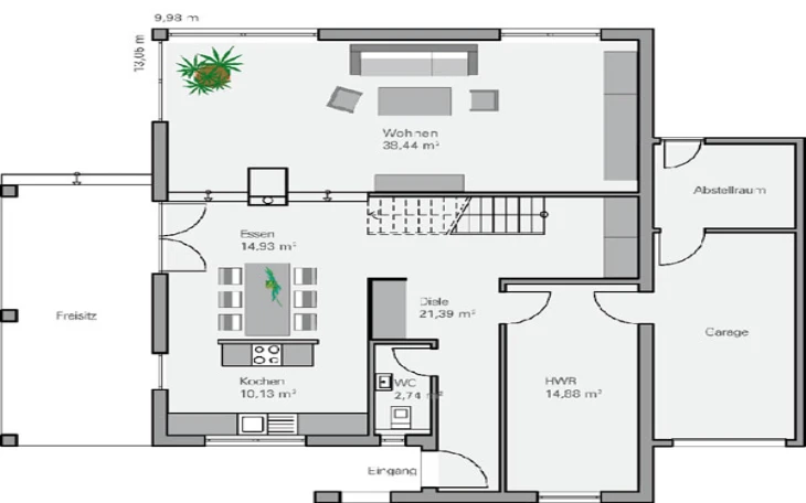
Grundrisse und Hausmaße
| Etagen | 2 |
|---|---|
| Wohnfläche | 187,50 m² |
| Nutzfläche | 189,50 m² |
Welche Serviceleistungen bietet BAUMEISTER-HAUS an?
Bauherren erhalten folgende Leistungen von BAUMEISTER-HAUS:
Architektenleistung
Baubetreuung
Bauzeitgarantie
Behördenservice
Bemusterungszentrum
Blower-Door-Test
Festpreisgarantie
Grundstücksservice
Individuelle Hausplanung
Sicherheitspaket
Musterhausbesichtigung
Rohbaubesichtigung
Weitere Häuser von BAUMEISTER-HAUS
BAUMEISTER-HAUS Kooperation e.V.
De-Saint-Exupéry-Straße 10
60549 Frankfurt / Main
Deutschland
