Einfamilienhaus: Fertighaus-Stadtvilla / Villa im mediterranen Stil - Edition S 322
Edition S 322
Hausinfo Edition S 322
Das Haus Edition S 322 von Wolf-Haus ist eine Stadtvilla / Villa im mediterranen Stil mit einer Fläche von 322,01 m² auf 2 Etagen. Die Wohnfläche teilt sich auf 7 Zimmer auf, davon 3 Schlafzimmer.Dieses Einfamilienhaus mit Walmdach wird in der Bauweise Fertighaus errichtet und erfüllt den Energiestandard Effizienzhaus 55.
Als Ausbauhaus beginnt der Hauspreis ab 570.965€. Der schlüsselfertige Hauspreis beträgt laut Hersteller ab 818.141€.
Der Haushersteller Wolf-Haus mit Sitz in Burkardroth-Gefäll/Deutschland ist seit 1902 aktiv und hat bisher mehr als 2.000 Häuser für zufriedene Baufamilien gebaut.
Wolf-Haus baut Ihr Fertighaus-Traumhaus Edition S 322 in den folgenden Bundesländern: Baden-Württemberg, Bayern, Berlin, Brandenburg, Bremen, Hamburg, Hessen, Mecklenburg-Vorpommern, Niedersachsen, Nordrhein-Westfalen, Rheinland-Pfalz, Saarland, Sachsen, Sachsen-Anhalt, Schleswig-Holstein, Thüringen.
Außerhalb Deutschlands kann das Haus in Luxemburg gebaut werden.
Bautafel
Hausname | Edition S 322 |
---|---|
Preis | Ausbauhaus ab 570.965 €
schlüsselfertig ab 818.141 € |
Bauweise | Fertighaus |
Dachform | Walmdach |
Dachneigung | 24° |
Haustyp | Stadtvilla / Villa |
Hausstil | Mediterran |
Verwendung | Einfamilienhaus |
Energiestandard | Effizienzhaus 55 |
Preisübersicht
Edition S 322
Schlüsselfertig
Preis ab 818.141 €
Der Preis bezieht sich auf die Ausbaustufe Fast Fertig ab Oberkante Keller bzw. Bodenplatte. Ohne Wandoberbeläge jedoch Qualitätsstufe Q2 gespachtelt, ohne Fußbodenbeläge (Bad u. WC gefliest).
Ausbauhaus
Preis ab 570.965 €
Alle Preise laut Hersteller als "ab"-Preise. Fehler oder Änderungen vorbehalten.
Bausatzhaus
-
In dieser Ausbaustufe ist das Haus leider nicht verfügbar.
Jetzt kostenlos Infos zum Haus anfordern!

Wo baut Wolf-Haus das Haus Edition S 322?
In den folgenden Bundesländern / Ländern kann das Haus gebaut werden:
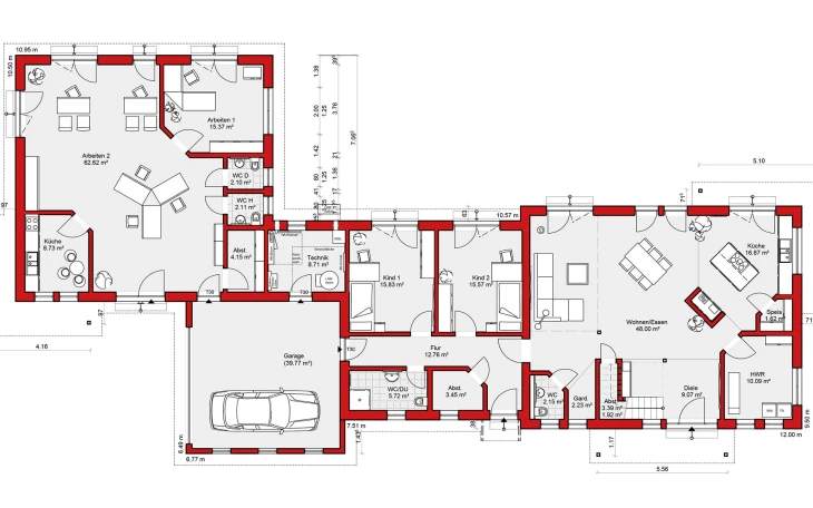
Bei der Gestaltung des Grundrisses fällt die klare Konzeption wohltuend auf. Im Inneren sind die gewünschten Funktionsbereiche deutlich getrennt. So befinden sich im EG des 2-geschossigen Hauptbaukörpers alle Wohnräume der Familie. Zwei Kinderzimmer mit eigenem Duschbad befinden sich auf der Erdgeschossebene im Verbindungstrakt zum An- bau. An den Verbindungsgang schließen sich noch ein Büroanbau und eine Doppelgarage an. Der Bürobereich umfasst zwei Arbeitszimmer, Mitarbeiterküche und den nötigen Sanitärraum.
Der „Elternflügel“ beherbergt im Obergeschoss neben dem Schlafzimmer ein großes Bad, eine Galerie zum Arbeiten oder Lesen und ein vielseitig nutzbares Studio.
Grundrisse und Hausmaße
Etagen | 2 |
---|---|
Zimmer | 7 / 3 Schlafzimmer |
Wohnfläche | 322,01 m² |
Welche Serviceleistungen bietet Wolf-Haus an?
Bauherren erhalten folgende Leistungen von Wolf-Haus:
Weitere Häuser von Wolf-Haus

Wolf-Haus-GmbH
Koppenmühle
97705 Burkardroth-Gefäll
Deutschland