Einfamilienhaus: Fertighaus-Stadtvilla / Villa im modernen Stil - SmartSpace-E-120 E1
SmartSpace-E-120 E1
Hausinfo SmartSpace-E-120 E1
Das Haus SmartSpace-E-120 E1 von Schwabenhaus ist eine Stadtvilla / Villa im modernen Stil mit einer Fläche von 119,21 m² auf 1,5 Etagen. Die Wohnfläche teilt sich auf 4 Zimmer auf, davon 3 Schlafzimmer.Dieses Einfamilienhaus mit Satteldach wird in der Bauweise Fertighaus errichtet und erfüllt den Energiestandard Effizienzhaus 55.
Der Haushersteller Schwabenhaus mit Sitz in Heringen (Werra)/Deutschland ist seit 1966 aktiv und hat bisher mehr als 25.000 Häuser für zufriedene Baufamilien gebaut.
Schwabenhaus baut Ihr Fertighaus-Traumhaus SmartSpace-E-120 E1 in den folgenden Bundesländern: Baden-Württemberg, Bayern, Berlin, Brandenburg, Bremen, Hamburg, Hessen, Luxemburg, Mecklenburg-Vorpommern, Niedersachsen, Nordrhein-Westfalen, Rheinland-Pfalz, Saarland, Sachsen, Sachsen-Anhalt, Schleswig-Holstein, Thüringen.
Außerhalb Deutschlands kann das Haus in Österreich, Luxemburg, gebaut werden.
Bautafel
Hausname | SmartSpace-E-120 E1 |
---|---|
Bauweise | Fertighaus |
Dachform | Satteldach |
Dachneigung | 38° |
Kniestock | 100 cm |
Haustyp | Stadtvilla / Villa |
Hausstil | Modern |
Verwendung | Einfamilienhaus |
Energiestandard | Effizienzhaus 55 |
Jetzt kostenlos Infos zum Haus anfordern!

Wo baut Schwabenhaus das Haus SmartSpace-E-120 E1?
In den folgenden Bundesländern / Ländern kann das Haus gebaut werden:
Baden-Württemberg
Bayern
Berlin
Brandenburg
Bremen
Deutschland
Hamburg
Hessen
Luxemburg
Mecklenburg-Vorpommern
Niedersachsen
Nordrhein-Westfalen
Österreich
Rheinland-Pfalz
Saarland
Sachsen
Sachsen-Anhalt
Schleswig-Holstein
Thüringen
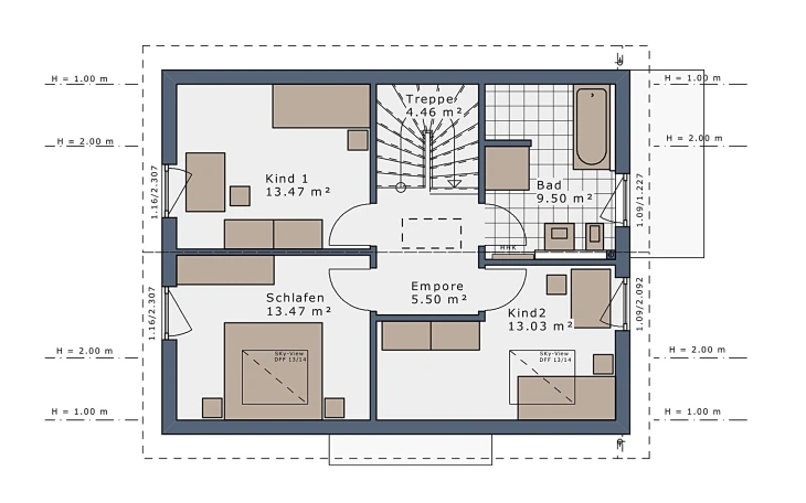
Grundrisse und Hausmaße
Etagen | 1,5 |
---|---|
Zimmer | 4 / 3 Schlafzimmer |
Wohnfläche | 119,21 m² |
Abmessungen | 7,48 m x 9,58 m |
Welche Serviceleistungen bietet Schwabenhaus an?
Bauherren erhalten folgende Leistungen von Schwabenhaus:
Architektenleistung
Baubetreuung
Bauzeitgarantie
Bemusterungszentrum
Blower-Door-Test
Festpreisgarantie
Finanzierungsberatung
Grundstücksservice
Individuelle Hausplanung
Sicherheitspaket
Musterhausbesichtigung
Referenzbesichtigung
Rohbaubesichtigung
TÜV-Qualitätskontrolle
Werksbesichtigung
Weitere Häuser von Schwabenhaus

Schwabenhaus GmbH
Industriestraße 2
36266 Heringen (Werra)
Deutschland