Einfamilienhaus: Fertighaus-Familienhaus im modernen Stil - Sensation-E-133 E4
Sensation-E-133 E4
Hausinfo Sensation-E-133 E4
Das Haus Sensation-E-133 E4 von Schwabenhaus ist ein Familienhaus im modernen Stil mit einer Fläche von 132,87 m² auf 2 Etagen. Die Wohnfläche teilt sich auf 5 Zimmer auf, davon 3 Schlafzimmer.Dieses Einfamilienhaus mit Satteldach wird in der Bauweise Fertighaus errichtet und erfüllt den Energiestandard Effizienzhaus 55.
Der Haushersteller Schwabenhaus mit Sitz in Heringen (Werra)/Deutschland ist seit 1966 aktiv und hat bisher mehr als 25.000 Häuser für zufriedene Baufamilien gebaut.
Schwabenhaus baut Ihr Fertighaus-Traumhaus Sensation-E-133 E4 in den folgenden Bundesländern: Baden-Württemberg, Bayern, Berlin, Brandenburg, Bremen, Hamburg, Hessen, Luxemburg, Mecklenburg-Vorpommern, Niedersachsen, Nordrhein-Westfalen, Rheinland-Pfalz, Saarland, Sachsen, Sachsen-Anhalt, Schleswig-Holstein, Thüringen.
Außerhalb Deutschlands kann das Haus in Österreich, Luxemburg, gebaut werden.
Bautafel
Hausname | Sensation-E-133 E4 |
---|---|
Bauweise | Fertighaus |
Dachform | Satteldach |
Dachneigung | 25° |
Kniestock | 166 cm |
Haustyp | Familienhaus |
Hausstil | Modern |
Verwendung | Einfamilienhaus |
Energiestandard | Effizienzhaus 55 |
Jetzt kostenlos Infos zum Haus anfordern!

Wo baut Schwabenhaus das Haus Sensation-E-133 E4?
In den folgenden Bundesländern / Ländern kann das Haus gebaut werden:
Baden-Württemberg
Bayern
Berlin
Brandenburg
Bremen
Deutschland
Hamburg
Hessen
Luxemburg
Mecklenburg-Vorpommern
Niedersachsen
Nordrhein-Westfalen
Österreich
Rheinland-Pfalz
Saarland
Sachsen
Sachsen-Anhalt
Schleswig-Holstein
Thüringen
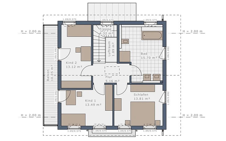
Grundrisse und Hausmaße
Etagen | 2 |
---|---|
Zimmer | 5 / 3 Schlafzimmer |
Wohnfläche | 132,87 m² |
Abmessungen | 8,98 m x 8,98 m |
Welche Serviceleistungen bietet Schwabenhaus an?
Bauherren erhalten folgende Leistungen von Schwabenhaus:
Architektenleistung
Baubetreuung
Bauzeitgarantie
Bemusterungszentrum
Blower-Door-Test
Festpreisgarantie
Finanzierungsberatung
Grundstücksservice
Individuelle Hausplanung
Sicherheitspaket
Musterhausbesichtigung
Referenzbesichtigung
Rohbaubesichtigung
TÜV-Qualitätskontrolle
Werksbesichtigung
Weitere Häuser von Schwabenhaus

Schwabenhaus GmbH
Industriestraße 2
36266 Heringen (Werra)
Deutschland