Haus mit Einliegerwohnung: Fertighaus-Kubushaus im Bauhausstil - Sigmaringen
Sigmaringen
Hausinfo Sigmaringen
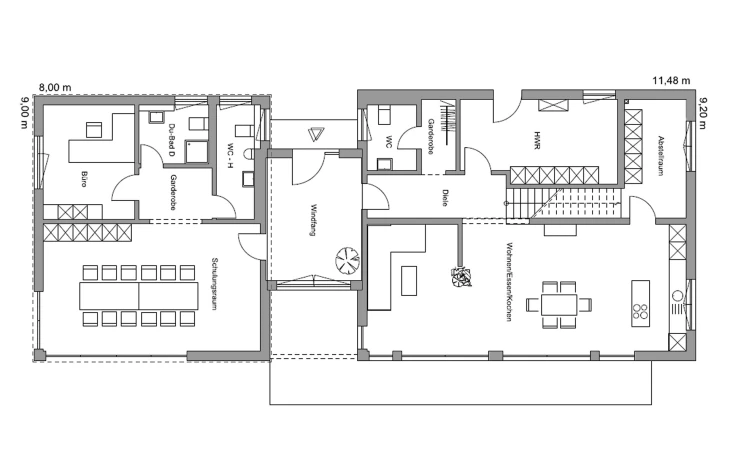
Das Haus Sigmaringen von Regnauer ist ein Kubushaus im Bauhausstil mit einer Fläche von 237,00 m² auf 2 Etagen. Die Wohnfläche teilt sich auf 13 Zimmer auf, davon 3 Schlafzimmer.Dieses Haus mit Einliegerwohnung mit Flachdach wird in der Bauweise Fertighaus errichtet und erfüllt den Energiestandard BEG Effizienzhaus 40 EE.
Den Preis in der Ausbaustufe Ausbauhaus erhalten Sie auf Anfrage vom Hersteller. Der schlüsselfertige Hauspreis beträgt laut Hersteller ab 757.460€.
Der Haushersteller Regnauer mit Sitz in Seebruck am Chiemsee/Deutschland ist seit 1929 aktiv und hat bisher mehr als 2500 Häuser für zufriedene Baufamilien gebaut.
Regnauer baut Ihr Fertighaus-Traumhaus Sigmaringen in den folgenden Bundesländern: Baden-Württemberg, Bayern, Berlin, Brandenburg, Bremen, Hamburg, Hessen, Mecklenburg-Vorpommern, Niedersachsen, Nordrhein-Westfalen, Rheinland-Pfalz, Saarland, Sachsen, Sachsen-Anhalt, Schleswig-Holstein, Thüringen.
Außerhalb Deutschlands kann das Haus in der Schweiz, Österreich, gebaut werden.
Bautafel
| Hausname | Sigmaringen |
|---|---|
| Preis | Ausbauhaus auf Anfrage schlüsselfertig ab 757.460 € |
| Bauweise | Fertighaus |
| Dachform | Flachdach |
| Dachneigung | 3° |
| Kniestock | 250 cm |
| Haustyp | Kubushaus |
| Hausstil | Bauhausstil |
| Verwendung | Haus mit Einliegerwohnung |
| Energiestandard | BEG Effizienzhaus 40 EE |
Preisübersicht
Sigmaringen
Schlüsselfertig
Preis ab 757.460 €
Ausführung gemäß aktueller Regnauer Bauleistungs- und Ausstattungsbeschreibung.
Weitere Informationen auf www.regnauer.de. Abbildungen können Sonderausstattung zeigen.
Regnauer Hausbau legt großen Wert darauf, Ihr Vitalhaus ganz nach Ihren persönlichen Wünschen zu gestalten. Gemäß Ihren Wünschen und Ihrer Grundstückssituation ergibt sich dann ein exakter Festpreis für Ihr Traumhaus. Daher beziehen sich die Preise auf eine Vitalausstattung ohne spezifische Sonderausstattung.
Voraussetzung zur Erlangung der Bundesförderung für Effiziente Gebäude (BEG) ist die Einhaltung der diesbezüglichen Förderrichtlinien. So wird hierfür unter anderem die Ausführung einer förderfähigen Haustechnik sowie die entsprechende Ausführung der bauherrenseitigen Leistungen (z.B. Keller und -ausbau) vorausgesetzt. Die Förderrichtlinien sind auch Änderungen unterworfen, sodass die Förderfähigkeit jeweils im Einzelfall geprüft und objektspezifisch durch das Förderinstitut bestätigt werden muss. Auch können einzelne Programme ausgesetzt oder verändert werden. Die Regnauer Hausbau GmbH & Co KG kann keine Finanzierungs- oder Förderberatung durchführen.
Ausbauhaus
a.A.
Diesen Preis erfahren Sie auf Anfrage vom Hersteller.
Bausatzhaus
-
In dieser Ausbaustufe ist das Haus leider nicht verfügbar.
Jetzt kostenlos Infos zum Haus anfordern!
Wo baut Regnauer das Haus Sigmaringen?
In den folgenden Bundesländern / Ländern kann das Haus gebaut werden:
An das 2-geschossige Haupthaus schließen sich der 1-stöckige Anbau sowie eine Garage mit Carport an. Konsequent stehen dabei die einheitliche weiße Fassadengestaltung sowie eine klare und funktionale Linienführung im Mittelpunkt. Der mittels Massivholz-Riegel-Konstruktion erstellte Baukörper umfasst insgesamt 238 Quadratmeter Wohnfläche.
Ausführung gemäß aktueller Regnauer Bauleistungs- und Ausstattungsbeschreibung.
Abbildungen können Sonderausstattung zeigen.
Wir legen großen Wert darauf, Ihr Vitalhaus ganz nach Ihren persönlichen Wünschen zu gestalten.
Gemäß Ihren Wünschen und Ihrer Grundstückssituation ergibt sich dann ein exakter Festpreis für Ihr Traumhaus. Daher beziehen sich die Preise auf eine Vitalausstattung ohne spezifische Sonderausstattung.
Grundrisse und Hausmaße
| Etagen | 2 |
|---|---|
| Zimmer | 13 / 3 Schlafzimmer |
| Wohnfläche | 237,00 m² |
| Abmessungen | 11,50 m x 9,20 m |
Welche Serviceleistungen bietet Regnauer an?
Bauherren erhalten folgende Leistungen von Regnauer:
Weitere Häuser von Regnauer
Regnauer Hausbau GmbH & Co. KG
Pullacher Straße 11
83358 Seebruck am Chiemsee
Deutschland
