Einfamilienhaus: Fertighaus-Stadtvilla / Villa im mediterranen Stil - LifeStyle 19.03 W
LifeStyle 19.03 W
Hausinfo LifeStyle 19.03 W
Das Haus LifeStyle 19.03 W von massa haus ist eine Stadtvilla / Villa im mediterranen Stil mit einer Fläche von 177,00 m² auf 2 Etagen. Die Wohnfläche teilt sich auf 6 Zimmer auf, davon 4 Schlafzimmer.Dieses Einfamilienhaus mit Walmdach wird in der Bauweise Fertighaus errichtet und erfüllt den Energiestandard Niedrigenergiehaus.
Als Ausbauhaus beginnt der Hauspreis ab 209.999€. Den Preis für das schlüsselfertige Fertighaus erhalten Sie auf Anfrage vom Hersteller.
Der Haushersteller massa haus mit Sitz in Simmern/Deutschland ist seit 1978 aktiv und hat bisher mehr als 35.000 Häuser für zufriedene Baufamilien gebaut.
massa haus baut Ihr Fertighaus-Traumhaus LifeStyle 19.03 W in den folgenden Bundesländern: Baden-Württemberg, Bayern, Berlin, Brandenburg, Bremen, Hamburg, Hessen, Mecklenburg-Vorpommern, Niedersachsen, Nordrhein-Westfalen, Rheinland-Pfalz, Saarland, Sachsen, Sachsen-Anhalt, Schleswig-Holstein, Thüringen.
Bautafel
| Hausname | LifeStyle 19.03 W | 
|---|---|
| Preis | Ausbauhaus ab 209.999 €
 schlüsselfertig auf Anfrage  | 
                                                    
| Bauweise | Fertighaus | 
| Dachform | Walmdach | 
| Dachneigung | 22° | 
| Haustyp | Stadtvilla / Villa | 
| Hausstil | Mediterran | 
| Verwendung | Einfamilienhaus | 
| Energiestandard | Niedrigenergiehaus | 
Preisübersicht
 LifeStyle 19.03 W
                                Schlüsselfertig
a.A.
Diesen Preis erfahren Sie auf Anfrage vom Hersteller.
Ausbauhaus
Preis ab 209.999 €
inkl. Architektenleistung, massa-Vierfach-Schutz, 3-fach-Fensterverglasung, massa-Klima-Schutz-Wand, Freiraum-Upgrade
Bausatzhaus
-
In dieser Ausbaustufe ist das Haus leider nicht verfügbar.
Jetzt kostenlos Infos zum Haus anfordern!
                                    Wo baut massa haus das Haus LifeStyle 19.03 W?
In den folgenden Bundesländern / Ländern kann das Haus gebaut werden:
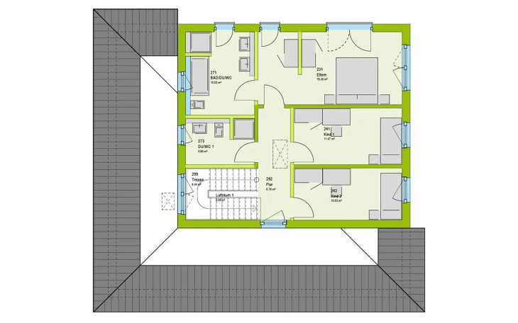
Grundrisse und Hausmaße
| Etagen | 2 | 
|---|---|
| Zimmer | 6 / 4 Schlafzimmer | 
| Wohnfläche | 177,00 m² | 
Welche Serviceleistungen bietet massa haus an?
Bauherren erhalten folgende Leistungen von massa haus:
Weitere Häuser von massa haus
                        massa haus GmbH
Argenthaler Straße 7
55469 Simmern
Deutschland
                                            
                                                
                                                
                                                
                                                    
                                                    