Inhalt
- Was ist ein Kubushaus?
- Für wen eignen sich Kubushäuser?
- Kubushaus Grundrisse
- Was zeichnet Kubushäuser aus?
- Kubushaus Dachform – welche eignet sich am besten?
- Mögliche Formen von Kubushäusern
- Kubushaus bauen: Vor- und Nachteile
- Was kostet ein Kubushaus?
- Welche Hersteller bauen Kubushäuser?
- Alle Kubushäuser in der Übersicht
Was ist ein Kubushaus?
Moderne Kubushäuser (auch Cubushaus genannt) entspringen der Architektur des Bauhausstils und ziehen mit ihrer klaren Linienführung die Blicke auf sich. Durch viele mögliche Gebäudevarianten sind sie zudem maximal individualisierbar und passen sich den Bedürfnissen der Bauherren besonders gut an. Doch was sind kubus-förmige Häuser eigentlich? Den Begriff »Kubus« kennen wir sonst eher aus der Geometrie, doch für den hier vorgestellten Haustyp passt er aufgrund der charakteristischen Würfelform wie kein anderer. Das macht das Kubushaus gerade für Fans des schlichten und gradlinigen Designs zum unbestrittenen Favoriten.
Concept Design 151

X-Black 2

Bauhaus 175

LifeStyle 13.10 F

SUNSHINE 143 V7

Ehrenbach
Für wen eignen sich Kubushäuser?
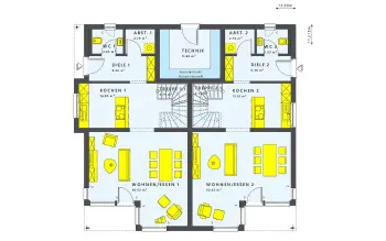
Kubushäuser sind als Fertighaus, Teilfertighaus oder als Massivhaus mit individuellen Grundrissen, der gewünschten Etagenanzahl und sogar in Form eines Doppelhauses planbar. Damit bieten sie höchsten Wohnkomfort für Familien, Paare, Singles wie auch für das moderne Leben mehrerer Generationen unter einem Dach. Durch die hohe Flexibilität der Haushersteller lassen sich mit diesem Haustyp fast alle Vorstellungen und Wünsche der Bauherren umsetzen.Kubushaus Grundriss – eine Auswahl
Die Grundrisse von Kubushäusern sind meist rational durchdacht und großzügig gestaltet. Ein offener Wohn-/Ess-/Kochbereich ist typisch für Häuser dieses Bautyps. Im Folgenden finden Sie einige Grundriss-Beispiele für Kubushäuser, die Sie jedoch gemeinsam mit dem jeweiligen Haushersteller abwandeln, anpassen oder ganz neu planen können. Für viele Wünsche haben die Anbieter bereits Musterlösungen parat, die clever geplant und preiswert sind.
CONCEPT-M 168 Erlangen

SUNSHINE 113 V8

Bela

SUNSHINE 112 V3

SOLUTION 242 V7

Haas S 130 D
Was zeichnet Kubushäuser aus?
Die reduzierte Optik von Kubushäusern ist wie geschaffen für extrabreite oder bodentiefe Fensterfronten und große Türen. Integrierte Oberlichter lassen noch mehr Helligkeit ins Hausinnere – so entstehen freundliche Räume mit viel Tageslicht, die für das Plus an Gesundheit und Lebensqualität sorgen. Durch modernste Technik ist eine effiziente Wärmedämmung auch bei der Verwendung von vielen Glaselementen in der Gebäudehülle gewährleistet.Ein Kubushaus können Sie bis ins kleinste Detail nach Ihren persönlichen Vorlieben planen. Einzelne Flächen sind für den privaten Rückzug wahlweise mit zusätzlichen Wänden schließbar oder aber für die kommunikativen Hausbereiche vollständig zu öffnen. Die reduzierte Architektur macht hier auch im Hinblick auf potenzielle Anbauten fast alles möglich – von der passenden Garage bis hin zur harmonisch in das Gesamtbild integrierten Einliegerwohnung.
Kubushaus Dachform – welche eignet sich am besten?
Beim klassischen Kubushaus ist das Flachdach zur Erhaltung der klaren Linienführung beinahe ein Muss, auch wenn diese Dachvariante in der Regel wartungsintensiver und witterungsanfälliger ist als ein klassisches Satteldach. Wer das freie Areal in der luftigen Höhe eines Flachdachs nicht ungenutzt lassen möchte, kann es beispielsweise zur Dachterrasse ausbauen – für ungestörte Sonnenstunden oder eine exklusive Rooftop-Party. Auch der Aufbau einer Anlage für Solarthermie oder Fotovoltaik ist auf Flachdächern sehr beliebt, spart in Zeiten steigender Energiekosten bares Geld und schont gleichzeitig die Umwelt.Alles Wissenswerte über Flachdächer
Mögliche Formen von Kubushäusern
Beim Bau eines Kubushauses ist die Planung von lediglich einer Ebene genauso denkbar wie das Wohnen auf zwei Etagen – wahlweise mit Kellergeschoss. Den Gestaltungsideen sind hier kaum Grenzen gesetzt, denn die Stockwerke eines Kubushauses müssen nicht einheitlich übereinander liegen. Vom stilvoll herausstechenden Erker über den angrenzenden Garagen-Kubus bis zur integrierten Balkonüberdachung ist vieles möglich. Für den besonderen Charme sorgt auf Wunsch ein Material- und Farbmix der Außenverkleidung: Beton, Holz und Aluminium bieten sich in verschiedenen Kombination an.Für Singles und Paare mit geringem Platzbedarf sowie für die ältere Generation mit dem Wunsch nach Barrierefreiheit bietet sich der ebenerdige, eingeschossige Kubusbau in Form eines Bungalows an. Wer dagegen viel Platz braucht, für den sind auch mehrgeschossige Kubushäuser eine lohnenswerte Überlegung. So lassen sich beispielsweise ein repräsentativer Büroraum, mehrere Kinderzimmer, ein Hobbyraum oder ein separater Wellnessbereich im optionalen Untergeschoss problemlos unterbringen.
Kubushaus bauen: Vor- und Nachteile
Zu den Vorteilen eines Kubushauses zählen die frei planbaren und meist offenen Raumkonzepte sowie viel Glasfläche auf großen Fensterfronten – gegebenenfalls mit integrierten Oberlichtern – die für lichtdurchflutete Räumlichkeiten im ganzen Gebäude sorgen. Darüber hinaus- ist die Etagenanzahl individuell festlegbar.
- ist das Kubushaus prädestiniert für energieeffizientes, nachhaltiges Bauen.
- entsteht durch die Nutzung eines Flachdachs ein vollwertiges Obergeschoss ohne störende Dachschrägen.
- bietet das Flachdach sich zur Dachbegrünung, dem Aufbau einer Dachterrasse oder der Aufstellung einer Fotovoltaikanlage an.
Ein kleiner Nachteil liegt bei einem Flachdach in der etwas aufwendigeren Wartung, die bei der Vielzahl an Vorteilen jedoch wenig ins Gewicht fällt.