Doppelhaus: Fertighaus-Familienhaus im klassischen Stil - Haas D 114 B
Haas D 114 B
Hausinfo Haas D 114 B
Das Haus Haas D 114 B von Haas Haus ist ein Familienhaus im klassischen Stil mit einer Fläche von 146,70 m² auf 2,5 Etagen. Die Wohnfläche teilt sich auf 5 Zimmer auf, davon 4 Schlafzimmer.Dieses Doppelhaus mit Satteldach wird in der Bauweise Fertighaus errichtet und erfüllt den Energiestandard Effizienzhaus 40 Plus.
Als Ausbauhaus beginnt der Hauspreis ab 290.000€. Den Preis für das schlüsselfertige Fertighaus erhalten Sie auf Anfrage vom Hersteller.
Der Haushersteller Haas Haus mit Sitz in Falkenberg/Deutschland ist seit 1972 aktiv und hat bisher mehr als 50.000 Häuser für zufriedene Baufamilien gebaut.
Haas Haus baut Ihr Fertighaus-Traumhaus Haas D 114 B in den folgenden Bundesländern: Baden-Württemberg, Bayern, Berlin, Hessen, Nordrhein-Westfalen, Rheinland-Pfalz, Sachsen, Sachsen-Anhalt, Thüringen.
Außerhalb Deutschlands kann das Haus in der Schweiz, Österreich, Tschechien, Luxemburg gebaut werden.
Bautafel
| Hausname | Haas D 114 B |
|---|---|
| Preis | Ausbauhaus ab 290.000 €
schlüsselfertig auf Anfrage |
| Bauweise | Fertighaus |
| Dachform | Satteldach |
| Dachneigung | 32° |
| Haustyp | Familienhaus |
| Hausstil | Klassisch |
| Verwendung | Doppelhaus |
| Energiestandard | Effizienzhaus 40 Plus |
Preisübersicht
Haas D 114 B
Schlüsselfertig
a.A.
Diesen Preis erfahren Sie auf Anfrage vom Hersteller.
Ausbauhaus
Preis ab 290.000 €
* Preis gilt für die Ausbaustufe "Ausbauhaus" für die Basisvariante des Hauses (jeweilige Basisvariante einfügen) inkl. Bodenplatte (bei Grundriss mit Technikraum im EG) bzw. Keller (bei Grundriss ohne Technikraum im EG) für Bauort Deutschland; lt. Preisliste 10/2021; ohne Sonderausstattung; Abbildungen können aufpreispflichtige Sonderausstattungen enthalten. Die angegeben Außenmaße beziehen sich auf die Außenmaße des Grundbaukörpers.
Voraussetzung für ein KfW-Effizienzhaus 40 Plus sind die Ausführung des Hauses auf Bodenplatte und Hausvariante gem. Haas Hauskatalog sowie passende Grundstückssituation.
Bausatzhaus
-
In dieser Ausbaustufe ist das Haus leider nicht verfügbar.
Jetzt kostenlos Infos zum Haus anfordern!
Wo baut Haas Haus das Haus Haas D 114 B?
In den folgenden Bundesländern / Ländern kann das Haus gebaut werden:
Doppelhaus mit schickem Studio
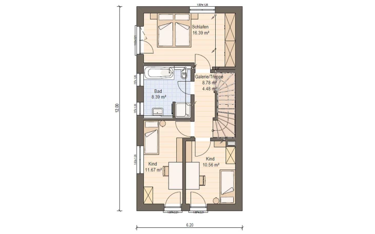
Dass ein Doppelhaus ausreichend Platz für eine Familie mit drei Kindern bietet, beweist das Haas D 114 B auf ganzer Linie. So ist im Erdgeschoss eine geräumige offene Küche mit lichtdurchflutetem Wohn-Essbereich untergebracht. Über die platzsparende Treppe mit integriertem Stauraum geht’s ins Obergeschoss. Hier sind drei Schlafzimmer sowie ein Badezimmer angesiedelt. Das Highlight steckt im Dachgeschoss. Dort findet ein geräumiges Studio Platz, das über ein eigenes Dusch-Bad verfügt.* Voraussetzung für ein KfW-Effizienzhaus 40 Plus sind die Ausführung des Hauses auf Bodenplatte und Hausvariante gem. Haas Hauskatalog sowie passende Grundstückssituation.
Grundrisse und Hausmaße
| Etagen | 2,5 |
|---|---|
| Zimmer | 5 / 4 Schlafzimmer |
| Wohnfläche | 146,70 m² |
| Abmessungen | 6,20 m x 12,00 m |
Welche Serviceleistungen bietet Haas Haus an?
Bauherren erhalten folgende Leistungen von Haas Haus:
Weitere Häuser von Haas Haus
Haas Fertigbau GmbH
Industriestraße 8
84326 Falkenberg
Deutschland
