Doppelhaus: Massivhaus-Familienhaus im klassischen Stil - Finesse 129
Finesse 129
Hausinfo Finesse 129
Das Haus Finesse 129 von FAVORIT ist ein Familienhaus im klassischen Stil mit einer Fläche von 131,54 m² auf 1,5 Etagen. Die Wohnfläche teilt sich auf 5 Zimmer auf, davon 3 Schlafzimmer.Dieses Doppelhaus mit Satteldach wird in der Bauweise Massivhaus errichtet und erfüllt den Energiestandard Effizienzhaus 55.
Den Preis in der Ausbaustufe Ausbauhaus erhalten Sie auf Anfrage vom Hersteller. Der schlüsselfertige Hauspreis beträgt laut Hersteller ab 318.520€.
Der Haushersteller FAVORIT mit Sitz in Möhnesee/Deutschland ist seit 1988 aktiv und hat bisher mehr als 4000 Häuser für zufriedene Baufamilien gebaut.
FAVORIT baut Ihr Massivhaus-Traumhaus Finesse 129 in den folgenden Bundesländern: Baden-Württemberg, Bayern, Berlin, Brandenburg, Bremen, Hamburg, Hessen, Mecklenburg-Vorpommern, Niedersachsen, Nordrhein-Westfalen, Rheinland-Pfalz, Saarland, Sachsen, Sachsen-Anhalt, Schleswig-Holstein, Thüringen.
Bautafel
Hausname | Finesse 129 |
---|---|
Preis | Ausbauhaus auf Anfrage schlüsselfertig ab 318.520 € |
Bauweise | Massivhaus |
Dachform | Satteldach |
Dachneigung | 45° |
Kniestock | 50 cm |
Haustyp | Familienhaus |
Hausstil | Klassisch |
Verwendung | Doppelhaus |
Energiestandard | Effizienzhaus 55 |
Preisübersicht
Finesse 129
Schlüsselfertig
Preis ab 318.520 €
Alle Preise beziehen sich auf "Kompletthaus mit Bodenplatte"
Ausbauhaus
a.A.
Diesen Preis erfahren Sie auf Anfrage vom Hersteller.
Bausatzhaus
-
In dieser Ausbaustufe ist das Haus leider nicht verfügbar.
Jetzt kostenlos Infos zum Haus anfordern!

Wo baut FAVORIT das Haus Finesse 129?
In den folgenden Bundesländern / Ländern kann das Haus gebaut werden:
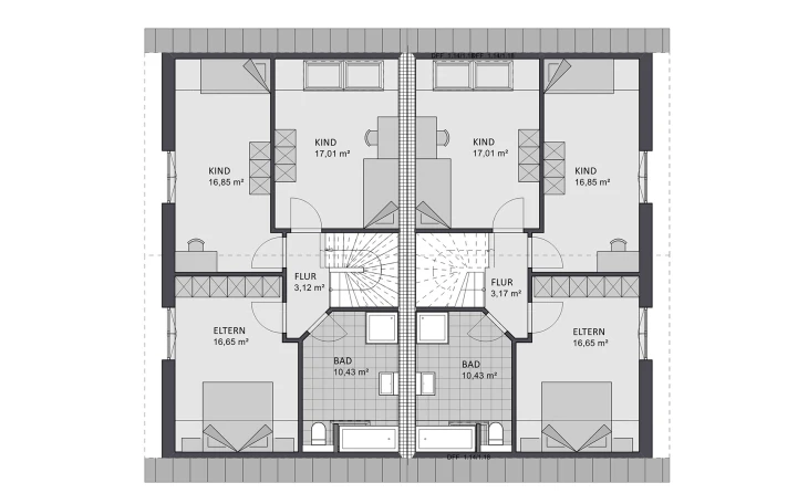
Alle Angaben zur linken Haushälfte.
Grundrisse und Hausmaße
Etagen | 1,5 |
---|---|
Zimmer | 5 / 3 Schlafzimmer |
Wohnfläche | 131,54 m² |
Abmessungen | 7,00 m x 12,00 m |
Welche Serviceleistungen bietet FAVORIT an?
Bauherren erhalten folgende Leistungen von FAVORIT:
Weitere Häuser von FAVORIT

FAVORIT Haus- Vertriebs GmbH
Krummer Weg 50-52
59519 Möhnesee
Deutschland