Einfamilienhaus: Fertighaus-Bungalow im Bauhausstil - Perfect 120 cube
Perfect 120 cube
Hausinfo Perfect 120 cube
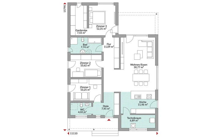
Das Haus Perfect 120 cube von Danwood ist ein Bungalow im Bauhausstil mit einer Fläche von 120,15 m² auf einer Etage. Die Wohnfläche teilt sich auf 4 Zimmer auf, davon 2 Schlafzimmer.Dieses Einfamilienhaus mit Flachdach wird in der Bauweise Fertighaus errichtet und erfüllt den Energiestandard Effizienzhaus 40 Plus.
Den Preis in der Ausbaustufe Ausbauhaus erhalten Sie auf Anfrage vom Hersteller. Der schlüsselfertige Hauspreis beträgt laut Hersteller ab 262.700€.
Der Haushersteller Danwood mit Sitz in Berlin/Deutschland ist seit 1972 aktiv und hat bisher mehr als 15000 Häuser für zufriedene Baufamilien gebaut.
Danwood baut Ihr Fertighaus-Traumhaus Perfect 120 cube in den folgenden Bundesländern: Baden-Württemberg, Bayern, Berlin, Brandenburg, Bremen, Hamburg, Hessen, Luxemburg, Mecklenburg-Vorpommern, Niedersachsen, Nordrhein-Westfalen, Rheinland-Pfalz, Saarland, Sachsen, Sachsen-Anhalt, Schleswig-Holstein, Thüringen.
Außerhalb Deutschlands kann das Haus in der Schweiz, Österreich, Luxemburg, Vereinigtes Königreich gebaut werden.
Bautafel
| Hausname | Perfect 120 cube |
|---|---|
| Preis | Ausbauhaus auf Anfrage schlüsselfertig ab 262.700 € |
| Bauweise | Fertighaus |
| Dachform | Flachdach |
| Haustyp | Bungalow |
| Hausstil | Bauhausstil |
| Verwendung | Einfamilienhaus |
| Energiestandard | Effizienzhaus 40 Plus |
Preisübersicht
Perfect 120 cube
Schlüsselfertig
Preis ab 262.700 €
Preis gilt inklusive Maler, Fliesen, Sanitär, Vinyl, Teppichboden und Technikpaket (Luft-Wasser-Wärmepumpe + Fußbodenheizung + zentrale Lüftungsanlage mit Wärmerückgewinnung) ab Oberkante Bodenplatte.
Ausbauhaus
a.A.
Diesen Preis erfahren Sie auf Anfrage vom Hersteller.
Bausatzhaus
-
In dieser Ausbaustufe ist das Haus leider nicht verfügbar.
Jetzt kostenlos Infos zum Haus anfordern!
Wo baut Danwood das Haus Perfect 120 cube?
In den folgenden Bundesländern / Ländern kann das Haus gebaut werden:
SCHLÜSSELFERTIG
inklusive Maler, Fliesen, Sanitär, Vinyl, Teppichboden und Technikpaket (Luft-Wasser-Wärmepumpe + Fußbodenheizung + zentrale Lüftungsanlage mit Wärmerückgewinnung) ab Oberkante BodenplatteGrundrisse und Hausmaße
| Etagen | 1 |
|---|---|
| Zimmer | 4 / 2 Schlafzimmer |
| Nutzfläche | 120,15 m² |
| Abmessungen | 11,11 m x 15,79 m |
Welche Serviceleistungen bietet Danwood an?
Bauherren erhalten folgende Leistungen von Danwood:
Weitere Häuser von Danwood
Danwood S.A.- Zweigniederlassung Berlin
Justus-von-Liebig-Straße 7
12489 Berlin
Deutschland
