Doppelhaus: Fertighaus-Stadtvilla / Villa im klassischen Stil - Partner 155W
Partner 155W
Hausinfo Partner 155W
Das Haus Partner 155W von Danwood ist eine Stadtvilla / Villa im klassischen Stil mit einer Fläche von 155,00 m² auf 2 Etagen. Die Wohnfläche teilt sich auf 6 Zimmer auf, davon 5 Schlafzimmer.Dieses Doppelhaus mit Walmdach wird in der Bauweise Fertighaus errichtet und erfüllt den Energiestandard Effizienzhaus 40 Plus.
Den Preis in der Ausbaustufe Ausbauhaus erhalten Sie auf Anfrage vom Hersteller. Der schlüsselfertige Hauspreis beträgt laut Hersteller ab 282.900€.
Der Haushersteller Danwood mit Sitz in Berlin/Deutschland ist seit 1972 aktiv und hat bisher mehr als 15000 Häuser für zufriedene Baufamilien gebaut.
Danwood baut Ihr Fertighaus-Traumhaus Partner 155W in den folgenden Bundesländern: Baden-Württemberg, Bayern, Berlin, Brandenburg, Bremen, Hamburg, Hessen, Luxemburg, Mecklenburg-Vorpommern, Niedersachsen, Nordrhein-Westfalen, Rheinland-Pfalz, Saarland, Sachsen, Sachsen-Anhalt, Schleswig-Holstein, Thüringen.
Außerhalb Deutschlands kann das Haus in der Schweiz, Österreich, Luxemburg, Vereinigtes Königreich gebaut werden.
Bautafel
Hausname | Partner 155W |
---|---|
Preis | Ausbauhaus auf Anfrage schlüsselfertig ab 282.900 € |
Bauweise | Fertighaus |
Dachform | Walmdach |
Dachneigung | 22° |
Haustyp | Stadtvilla / Villa |
Hausstil | Klassisch |
Verwendung | Doppelhaus |
Energiestandard | Effizienzhaus 40 Plus |
Preisübersicht
Partner 155W
Schlüsselfertig
Preis ab 282.900 €
Preis gilt inklusive Maler, Fliesen, Sanitär, Vinyl, Teppichboden und Technikpaket (Luft-Wasser-Wärmepumpe + Fußbodenheizung + zentrale Lüftungsanlage mit Wärmerückgewinnung) ab Oberkante Bodenplatte.
Ausbauhaus
a.A.
Diesen Preis erfahren Sie auf Anfrage vom Hersteller.
Bausatzhaus
-
In dieser Ausbaustufe ist das Haus leider nicht verfügbar.
Jetzt kostenlos Infos zum Haus anfordern!

Wo baut Danwood das Haus Partner 155W?
In den folgenden Bundesländern / Ländern kann das Haus gebaut werden:
SCHLÜSSELFERTIG
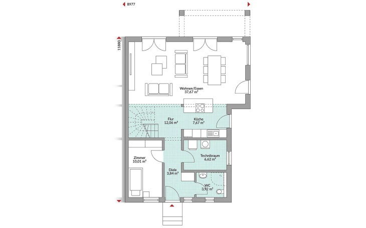
inklusive Maler, Fliesen, Sanitär, Vinyl, Teppichboden und Technikpaket (Luft-Wasser-Wärmepumpe + Fußbodenheizung + zentrale Lüftungsanlage mit Wärmerückgewinnung) ab Oberkante BodenplatteGrundrisse und Hausmaße
Etagen | 2 |
---|---|
Zimmer | 6 / 5 Schlafzimmer |
Nutzfläche | 155,00 m² |
Abmessungen | 11,88 m x 8,98 m |
Welche Serviceleistungen bietet Danwood an?
Bauherren erhalten folgende Leistungen von Danwood:
Weitere Häuser von Danwood

Danwood S.A.- Zweigniederlassung Berlin
Justus-von-Liebig-Straße 7
12489 Berlin
Deutschland