Einfamilienhaus: Fertighaus-Stadtvilla / Villa im modernen Stil - Grunewald
Grunewald
Hausinfo Grunewald
Das Haus Grunewald von Danhaus ist eine Stadtvilla / Villa im modernen Stil mit einer Fläche von 152,20 m² auf 2 Etagen. Die Wohnfläche teilt sich auf 6 Zimmer auf, davon 4 Schlafzimmer.Dieses Einfamilienhaus mit Walmdach wird in der Bauweise Fertighaus errichtet und erfüllt den Energiestandard 1-Liter-Haus.
Den Hauspreis erhalten Sie auf Anfrage vom Hersteller.
Der Haushersteller Danhaus mit Sitz in Flensburg/Deutschland ist seit 1978 aktiv.
Danhaus baut Ihr Fertighaus-Traumhaus Grunewald in den folgenden Bundesländern: Baden-Württemberg, Bayern, Berlin, Brandenburg, Bremen, Hamburg, Hessen, Mecklenburg-Vorpommern, Niedersachsen, Nordrhein-Westfalen, Rheinland-Pfalz, Saarland, Sachsen, Sachsen-Anhalt, Schleswig-Holstein, Thüringen.
Bautafel
Hausname | Grunewald |
---|---|
Preis | Hauspreis auf Anfrage |
Bauweise | Fertighaus |
Dachform | Walmdach |
Dachneigung | 25° |
Haustyp | Stadtvilla / Villa |
Hausstil | Modern |
Verwendung | Einfamilienhaus |
Energiestandard | 1-Liter-Haus |
Preisübersicht
Grunewald
Schlüsselfertig
a.A.
Diesen Preis erfahren Sie auf Anfrage vom Hersteller.
Alle Angaben laut Hersteller. Fehler oder Änderungen vorbehalten.
Ausbauhaus
a.A.
Diesen Preis erfahren Sie auf Anfrage vom Hersteller.
Bausatzhaus
-
In dieser Ausbaustufe ist das Haus leider nicht verfügbar.
Jetzt kostenlos Infos zum Haus anfordern!

Wo baut Danhaus das Haus Grunewald?
In den folgenden Bundesländern / Ländern kann das Haus gebaut werden:
Die angegebenen Netto-Grundflächen wurden nach der DIN 277 berechnet. (Die Abb. der Häuser zeigen teilweise Sonderausstattungen) Angaben zum Preis: ab OK schlüsselfertig inkl. Solaranlage für die Warmwasseraufbereitung, ohne Maler-/Teppicharbeiten. Jedes Danhaus erhalten Sie wahlweise als KfW-55, -40 oder -40 Plus Effizienzhaus.
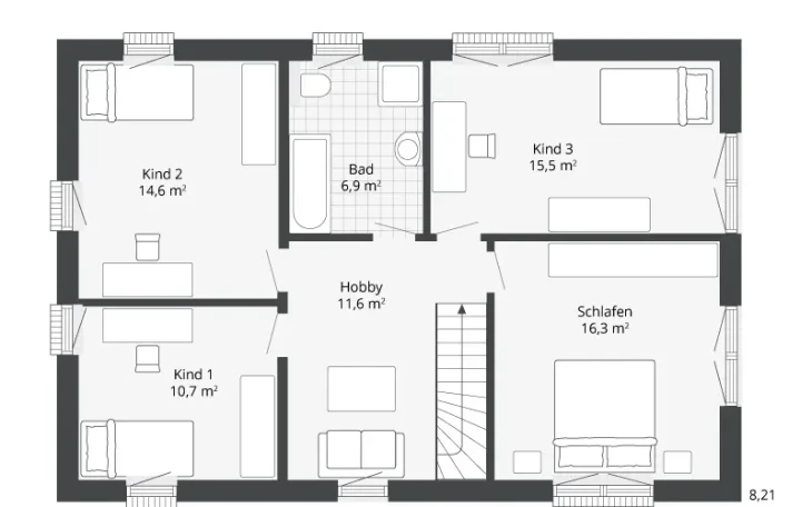
Grundrisse und Hausmaße
Etagen | 2 |
---|---|
Zimmer | 6 / 4 Schlafzimmer |
Wohnfläche | 152,20 m² |
Abmessungen | 0,00 X 0,00 m |
Welche Serviceleistungen bietet Danhaus an?
Bauherren erhalten folgende Leistungen von Danhaus:
Weitere Häuser von Danhaus

Danhaus Deutschland GmbH
Stuhrsallee 33
24937 Flensburg
Deutschland