Walmdach bauen – robust und stattlich zugleich

Ob das Walmdach zu Ihrer Hausplanung passt, hängt von mehreren Faktoren ab. Grundsätzlich eignet es sich für den Einsatz in jeder deutschen Klimaregion und auf jedem Haustyp, auch wenn es aufgrund der guten Witterungsbeständigkeit gerne in Gegenden mit widrigen Wetterbedingungen zum Einsatz kommt. Zudem sollte seine auffällige Optik mit der gesamten Architektur Ihres Wunschhauses natürlich ebenso harmonieren wie mit den umliegenden Gebäuden der Wohnsiedlung. Ob ein Hausbau mit Walmdach auf Ihrem Grundstück erlaubt ist, erfahren Sie im Bebauungsplan. Diesen finden Sie bei Ihrer örtlichen Stadtverwaltung.

Was ist ein Walmdach?

Während ein Satteldach mit zwei geneigten Dachflächen und zwei senkrechten Giebeln ausgestattet ist, ersetzt ein vollständiges Walmdach die Giebel an der Vor- und Rückseite des Hauses durch sogenannte Walme und weist damit auf allen vier Seiten Schrägen auf. Diese vier Flächen münden auf der Oberseite im Dachfirst und schließen auf der Unterseite mit der Dachtraufe ab, die sich beim klassischen Walmdach auf einer Ebene befindet. Die gesamte Dachfläche erscheint im Verhältnis zur Wohnraumfläche üppig, optisch dominiert sie das Gebäude meist. Am Dachfirst treffen alle vier Flächen aufeinander, wodurch die Walmdach-Konstruktion ein hohes Maß an Stabilität erreicht – entsprechend zuverlässig schützt sie vor Schlechtwetterfronten und verspricht besondere Langlebigkeit. Zugleich strahlt sie eine distanzierte Eleganz aus, die dem ganzen Anwesen einen stattlichen Charakter verleiht.

Infobox

Nur wenn ein Dachfirst vorhanden ist und die vier Dachflächen nicht exakt gleich groß sind, spricht man von einem Walmdach. Fehlt der First und die Flächen treffen sich genau in der Mitte, handelt es sich um eine Walmdach-Sonderform: dem Pyramiden- oder Zeltdach.


Wie sieht die Konstruktion von Walmdächern aus?

Bei der Erstellung von Walmdächern ist es wichtig, dass die Übergänge von den beiden Hauptdächern zu den zwei Walmdachflächen gut gestützt sind – aus diesem Grund führt die Konstruktion über Eck. Sicherheit sorgt im klassischen Fall ein Stützverbund, der den unteren Gebäudeteil mit dem Dach verbindet. Wird ein Walmdachhaus mit ausgebautem Dachgeschoss erstellt, bietet sich sogar die Möglichkeit, die Tragekonstruktion durch Massivwände zu ersetzen.
Walmdach MEDLEY 3.0 MH Frankenberg von FingerHaus
Walmdach MEDLEY 3.0 MH Frankenberg von FingerHaus Infos zum Haus

MEDLEY 3.0 MH Frankenberg
Walmdach Edition S 165 von Wolf-Haus
Walmdach Edition S 165 von Wolf-Haus Infos zum Haus

Edition S 165
Walmdach Bungalow 78 von Town & Country Haus
Walmdach Bungalow 78 von Town & Country Haus Infos zum Haus

Bungalow 78
Walmdach VarioClassic 114 von VarioSelf
Walmdach VarioClassic 114 von VarioSelf Infos zum Haus

VarioClassic 114
Walmdach Solitüde von Danhaus
Walmdach Solitüde von Danhaus Infos zum Haus

Solitüde
Walmdach EVOLUTION 177 V4 von Bien-Zenker
Walmdach EVOLUTION 177 V4 von Bien-Zenker Infos zum Haus

EVOLUTION 177 V4

Beliebte Sonderformen des Walmdachs

Bei Walmdächern gibt es einige Sonderformen wie beispielsweise das Krüppelwalmdach. Es vereint die Vorteile eines Walmdachs und die des Satteldachs. Hier reicht der Walm nicht hinunter bis zur Traufhöhe (Höhe der Dachrinne), sodass ein trapezförmiger Restgiebel erhalten bleibt. Die dadurch entstehenden Dachgraten haben eine Länge von höchstens drei Metern. Dies bringt mehr Abstand zu den Nachbargebäuden, was besonders dann von Vorteil ist, wenn laut Bauordnung bestimmte Distanzen eingehalten werden müssen. Diese Dachart ist bei klassischen Einfamilienhäusern häufig zu finden. Eine weitere Variante ist das Fußwalmdach. Es zeichnet sich durch einen optisch abgegrenzten senkrechten Teil im oberen Dachbereich aus, der ebenfalls die Form eines Dreiecks hat und damit wunderbar zum friesischen Haustyp passt. Dann gibt es noch das Zeltdach. Bei dieser Art des Walmdachs gibt es keinen klassischen Dachfirst, da alle Dachseiten spitz nach oben zulaufen und im Firstpunkt enden.

Infobox

Was ist ein Niedersachsengiebel?
Der Niedersachsengiebel ist wie der Namen bereits verrät vor allem in Niedersachsen verbreitet. Die Walme dieses Giebels beginnen weder am Dachfirst noch enden sie an der Traufkante – damit befinden sie sich also quasi in der Dachflächenmitte. Da dies jedoch einige Konstruktionsnachteile mit sich bringt, wird er bei Neubauten heutzutage kaum noch genutzt.

 

Welcher Neigungswinkel für ein Walmdach? – Berücksichtigung der Dachneigung

Meist wird ein klassisches Walmdach mit einer Dachneigung von etwa 25 Grad gebaut. Möglich sind jedoch auch anderen Dachneigungen, um beispielsweise den Raum des Dachgeschosses zu vergrößern und noch besser nutzbar zu machen. Sollen die Räumlichkeiten als Wohnfläche genutzt werden, ist eine Neigung von mindestens 30 Grad empfehlenswert. Doch auch steilere Winkel sind durchaus umsetzbar und haben zudem den charmanten Vorteil, dass das Regenwasser leichter abfließt. Wer es trotzdem lieber flach halten möchten, kann sein zukünftiges Walmdach auch mit einer Neigung von lediglich 15 Grad planen.

Welche ist die beste Eindeckung für Walmdächer?

Haben Sie sich für den Bau eines Walmdachs entschieden, steht die Frage nach der passenden Eindeckung an. Die verschiedenen Fertighaushersteller beraten Sie hierzu kostenlos und zeigen Ihnen die unterschiedlichen Eindeckarten, Farben und Materialien. Besonders beliebt sind auf Deutschlands Walmdächern Dachziegel oder Tonpfannen. Speziell im Süden sind Schindeln oft die erste Wahl und norddeutsche Häuslebauer greifen teilweise sogar auf Schilfeindeckungen (Reet) zurück. Diese verleihen insbesondere Krüppelwalmdächern einen robusten, traditionellen Charme. Kupfer und Zink sind weitere Alternativen, die zudem topmodische Akzente setzen. Ab einer Dachneigung von 22 Grad haben Sie eigentlich die freie Materialwahl für die Eindeckung. Doch ist die Entscheidung letztendlich abhängig von Ihrem Geschmack, dem zur Verfügung stehenden Budget, der Bauregion sowie der geplanten Dachflächennutzung.

Eignet sich ein Walmdach für Fotovoltaik?

Walmdächer eigenen sich auch für die Installation von Fotovoltaikanlagen oder Solarthermie für die nachhaltige und preiswerte Energieversorgung. Ist eine solche Anlage angedacht, sollte das Dach eine Neigung von etwa 30 Grad aufweisen. Doch auch bei steilerem Dachaufbau ist die Installation von Solarmodulen möglich. Im Gegensatz zum Satteldach, wo die Anbringung lediglich auf zwei vorgegebenen Seiten möglich ist, punktet das Walmdach gleich mit vier Dachflächen, die sich bestücken lassen. Damit verliert die Ausrichtung des Hauses an Relevanz.  

Vorteile und Nachteile von Walmdächern

Walmdächer sind bei Bauherren nicht nur wegen der interessanten Optik so beliebt. Sie bieten noch viele weitere Vorzüge, jedoch auch einige nachteilige Punkte, die Sie in Betracht ziehen sollten, bevor Sie sich endgültig für diese Dachform entscheiden.

Was sind die Vorteile eines Walmdachs?

  • Ein Walmdach bietet ein optisch reizvolles Gesamtbild
  • Die Konstruktion eines Walmdaches ist sehr tragfähig
  • Walmdächer sind pflegeleicht und langlebig
  • Da das Walmdach wenig Angriffsfläche für Wind und Regen bietet, ist es besonders witterungsbeständig
  • Walmdächer bieten gute Voraussetzungen für den Einsatz von Fotovoltaikanlagen oder Solarthermie
  • Ein Walmdach ist geeignet für die Errichtung eines Effizienzhauses
  • Sonderkonstruktionen wie beispielsweise überdachte Balkone sind bei Walmdachhäusern möglich

Was sind die Nachteile eines Walmdachs?

  • Weniger Wohnfläche durch Dachschrägen auf allen Seiten
  • Lichteinfall nur durch Dachfenster möglich
  • Höherer Materialaufwand und im Schnitt teurer als ein klassisches Satteldach

Wie viel kostet ein Walmdach?

Die Fertigung des Dachstuhls bei einem Walmdach ist vergleichsweise komplex und auch der Arbeits- sowie der Materialaufwand fällt um einiges höher aus als bei einem klassischen Satteldach. Damit die Konstruktion stabil bleibt und besonders im Bereich der Übergänge zwischen den einzelnen Dachflächen ausreichend gestützt wird, führt der Aufbau über Eck. Dies bedeutet Mehraufwand und entsprechende Mehrkosten. Der Preis spielt also eine entscheidende Rolle, da der Bau eines Walm- oder Krüppelwalmdachs höhere Errichtungskosten mit sich bringt als bei manch anderer Dachform.

Wie viel ein komplettes Walmdach tatsächlich kostet, hängt natürlich von Ihren individuellen Wünschen und den baulichen Voraussetzungen wie der Dachneigung, der Größe der Dachfläche sowie der Wahl der Eindeckung ab. Rechnen Sie mit ungefähr 100 Euro Materialpreis pro Quadratmeter plus Dämmung in Höhe von 40 - 50 Euro – bei einem Satteldach sind es zum Vergleich etwa 70 € reine Materialkosten. Für ein Haus mit circa 140 Quadratmetern Wohnfläche kommen so inklusive Arbeits- und Materialkosten schnell 40.000 Euro zustande. Fließen noch Sonderwünsche wie Gauben in die Planung ein, ist dies ein zusätzlicher Kostentreiber – doch einer, der sich lohnt und den ohnehin hohen Wohnkomfort auf die nächste Stufe hebt.
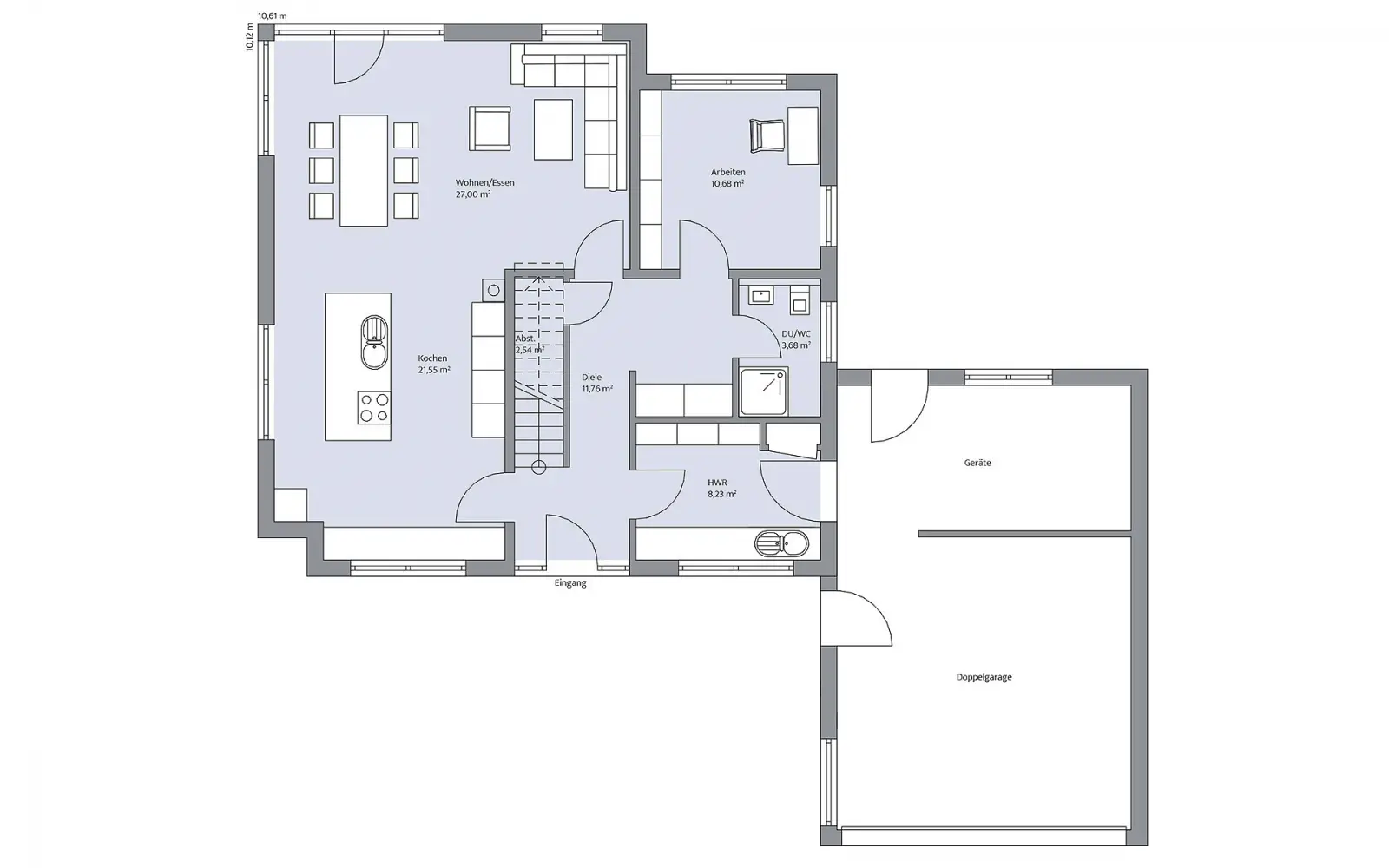
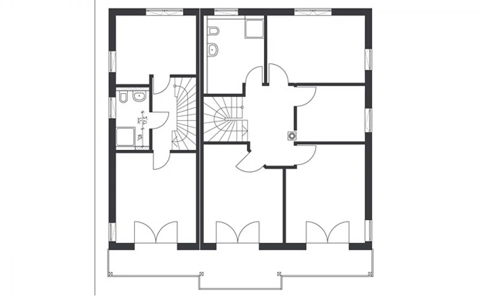
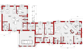
Grundriss Walmdach SUNSHINE 136 V7 von Living Haus
Walmdach SUNSHINE 136 V7 von Living Haus

SUNSHINE 136 V7
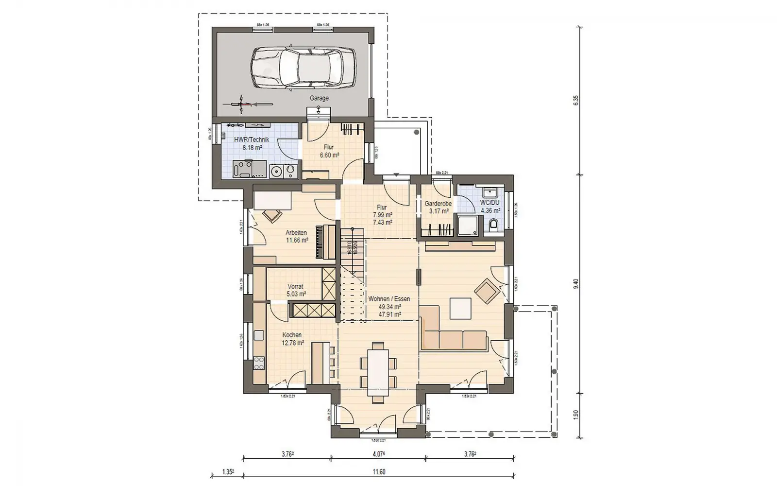
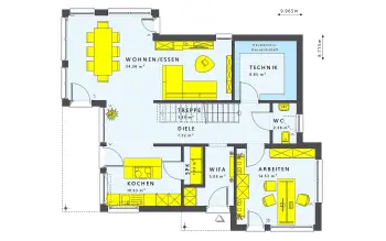
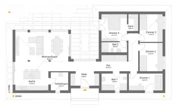
Grundriss Walmdach Chalet 105 von FAVORIT
Walmdach Chalet 105 von FAVORIT

Chalet 105
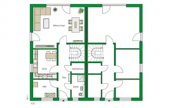
Grundriss Walmdach Dublin-Variante von HELMA
Walmdach Dublin-Variante von HELMA

Dublin-Variante
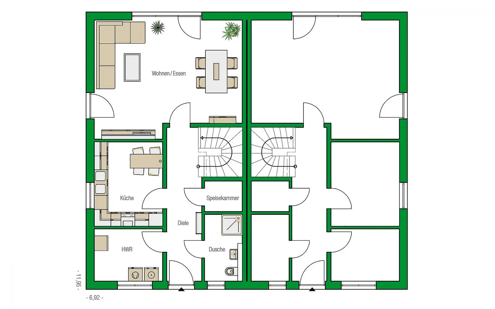
Grundriss Walmdach Doppelhaus Aura 136 von Town & Country Haus
Walmdach Doppelhaus Aura 136 von Town & Country Haus

Doppelhaus Aura 136
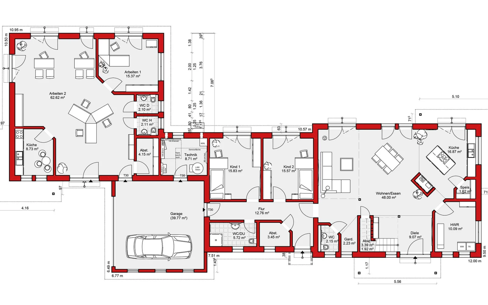
Grundriss Walmdach VarioCorner 204 von VarioSelf
Walmdach VarioCorner 204 von VarioSelf

VarioCorner 204
Grundriss Walmdach Bungalow 128 von Town & Country Haus
Walmdach Bungalow 128 von Town & Country Haus

Bungalow 128

Alle Walmdach-Häuser in der Übersicht!

Jetzt vergleichen!

0