Was ist ein Satteldach?
Satteldachhäuser sind mehrgeschossige Gebäude, die auch nach vielen Jahren nicht aus der Mode kommen. Sie sind ebenfalls unter dem Namen Giebeldach bekannt, bestehen aus Sparren, Balken und zwei geneigten Dachflächen, die an der höchsten Stelle aufeinandertreffen und den Dachfirst bilden. Damit liegt das Dach wie ein langer, zugespitzter Deckel auf den Gebäudemauern und schließt entweder mit dem Giebel ab oder ragt über diesen hinaus. Die Länge und der Winkel dieser beiden Dachhälften können dabei durchaus unterschiedlich ausfallen. Für das Grundgerüst finden Holzbalken Verwendung, die passgenau zugeschnitten werden und sich gegenseitig stützen. Senkrecht zu diesen Balken werden die Sparren verbaut. Die gesamte Konstruktion lenkt so die Last des Dachs auf die stabilen Außenwände des Gebäudes.Der Aufbau des Dachstuhls ist bei einem Satteldach einfach und preiswert, da aufgrund der Form Details entfallen, die einen höheren Arbeitsaufwand mit sich bringen und oft auch schadensanfälliger sind. Sie eignen sich außerdem hervorragend für die Errichtung eines gemütlichen Sichtdachstuhls, den Kinder ebenso wie Erwachsene lieben. Die warme Ausstrahlung des Deckenholzes schafft beste Voraussetzungen für ein angenehmes und gesundes Wohnklima. Ist der durchgängige Holzlook doch etwas »too much« für Ihren Geschmack, können Sie die Balken und Verschalungen in hellen Farben streichen oder alternativ mit Gipskartonplatten verkleiden lassen. Satteldachgauben werten das Gebäude zusätzlich auf. Sie sind einerseits ein Blickfang auf den geraden Dachflächen, andererseits gleichen sie den durch die Schrägen entstandenen Wohnraumverlust aus. Das sorgt für ausreichend Platz und Licht bis in den letzten Winkel.
Satteldächer sind im Vergleich zu vielen anderen Dachformen von Natur aus sehr witterungsbeständig und relativ wartungsarm, was die Instandhaltungskosten dauerhaft niedrig hält. Breite Dachüberstände, wie wir sie aus dem alpinen Raum kennen, bieten einen ergänzenden Wetterschutz, der reizvoll aussieht und den Bewohnern darüber hinaus noch eine gemütliche Rückzugszone im Freien schenkt. Befindet sich der Dachüberstand auf der Giebelseite, macht dies einen teilüberdachten Balkon- oder Terrassenanbau möglich.

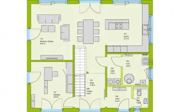
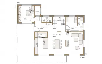
SUNSHINE 151 V2

ICON Winkelbungalow

CELEBRATION 114 V3 XL

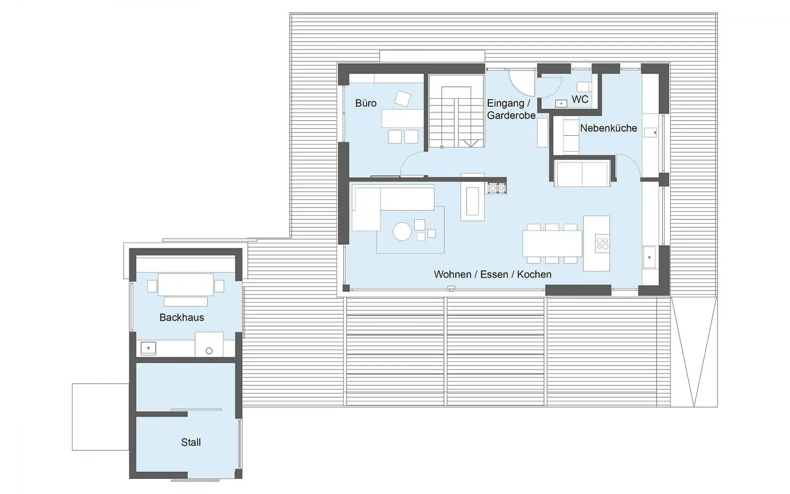
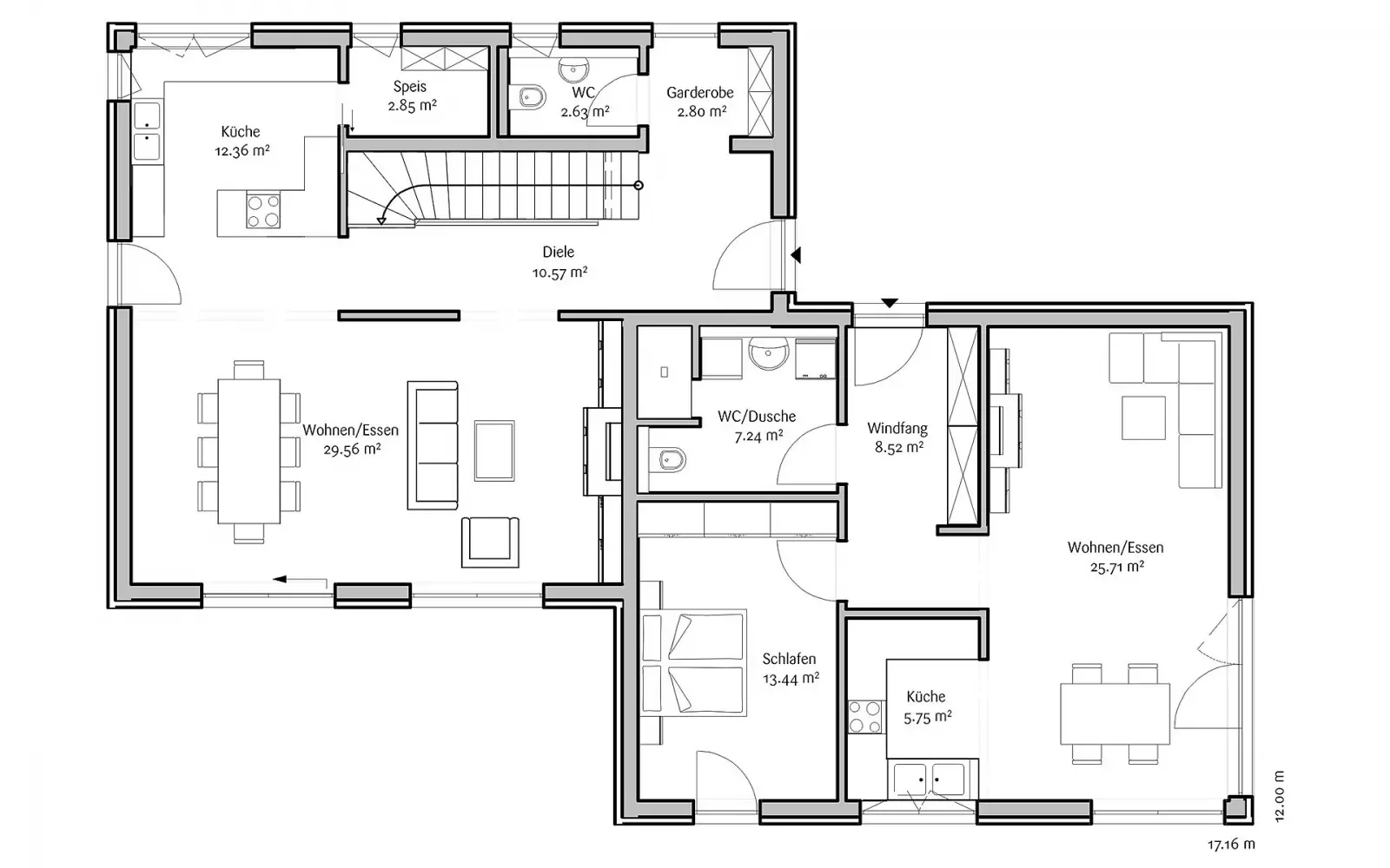
Partner 135

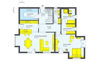
Erlangen (Musterhaus)

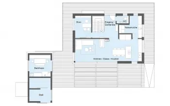
Attergau
Was ist ein Zwerchgiebel? – Eine Sonderform des Satteldachs
Mit einem Satteldach entscheiden Sie sich für eine solide und wettersichere Lösung beim Hausbau. Möchten Sie Ihr Satteldach zusätzlich aufwerten, bietet sich ein Zwerchgiebel an, denn dieser verändert den sonst eher schlichten Gesamteindruck des Wohngebäudes deutlich. Der Zwerchgiebel wird senkrecht zum Hauptdach erstellt und wirkt wie eine Art gemauerte, in das Dach integrierte Gaube mit einem zweiten kleineren Satteldach. Je steiler das Satteldach, desto höher wird der Raum hinter dem Giebel – ab einer Dachneigung von etwa 35 Grad ist die Kopffreiheit erreicht.Früher war dieser dritte Giebel hauptsächlich im Norden Deutschlands weit verbreitet und galt als Statussymbol. Mittlerweile erfreut der Zwerchgiebel sich jedoch deutschlandweit größter Beliebtheit. Kein Wunder, denn er sieht nicht nur von außen ansprechend aus, sondern schafft zudem eine Menge Platz im Inneren – beispielsweise für großzügigere Treppenaufgänge und wesentlich mehr Wohnfläche, wo ansonsten nur Schrägen wären. Anstelle eines Extraraums ist alternativ auch die Errichtung einer offenen Galerie mit Blick auf die untere Etage möglich, was dem gesamten Raumgefühl eine luftige Leichtigkeit verleiht. Ein weiteres optisches Highlight entsteht, wenn das Satteldach des Zwerchgiebels mit einer anderen Dacheindeckung erfolgt oder sich farblich von dem Hauptdach absetzt.
Zusätzliche Informationen zu Zwerchgiebeldächern finden Sie auf unserer Seite unter Sonderdachformen.
In welchen Bauweisen werden Satteldächer gebaut?
Ein Satteldach entsteht durch drei verschiedene Bauweisen. So unterscheiden wir im Dachaufbau zwischen einem Sparren-, Pfetten- und Kehlbalkendach.Das Sparrendach findet meist bei steileren Dachwinkeln Verwendung. Die Sparren sind bei dieser Dachstuhlbauweise mit der unter dem Dach befindlichen Decke verbunden und der First wird mit einem Firstbrett versehen, wobei sich ein unbewegliches Dreieck bildet. Alle Belastungen, die durch das Wetter entstehen, werden bei der Konstruktion direkt in die stabilen Außenwände des Gebäudes gelenkt. Da mit dieser Art des Aufbaus viel Platz unter dem Dach entsteht, fällt der Innenausbau besonders leicht und lässt sich maximal flexibel gestalten. Dachüberstände lassen sich allerdings nur in begrenztem Umfang verwirklichen.
Bei flacheren Satteldächern kommt eher das Pfettendach zum Einsatz. Hier werden waagerecht zum Dachboden Pfettenbalken angebracht, die als Träger dienen, und auf denen die Sparren aufliegen. Meist sind auf jeder Seite des Dachs zwei Pfetten nötig und im Dachfirst noch eine weitere. Die Dachsparren selbst werden mit den unteren Pfetten, den sogenannten Fußpfetten, an der Hauswand befestigt. Da kein Verbund zwischen Sparren und Decke nötig ist, gelingt die Einrichtung von Öffnungen in der Bodendecke sowie der Einbau großer Dachgauben problemlos.
Zu guter Letzt gibt es noch das Kehlbalkendach, das zwar seltener vorkommt, aber den beiden anderen Varianten gegenüber einen entscheidenden Vorteil mitbringt: Der Aufbau ist extrem stabil, da das Kehlbalkendach im unteren Bereich mit den Gebäudewänden zusammenhängt, wodurch Spannweiten von bis zu 14 Metern möglich sind. Eine zusätzliche Fixierung erfolgt über Kehlbalken, die längsseitig auf mittlerer Dachhöhe platziert werden. Durch die zahlreichen Querbalken verkleinern sich bei diesem Dachtyp jedoch die Räumlichkeiten, sodass der Innenausbau weniger leicht von der Hand geht. Das Kehlbalkendach gibt es als Warm- oder als Kaltdach. Bei einem Warmdach ist die Konstruktion einschalig. Beim Kaltdach dagegen ist der Aufbau zweischalig, dabei entsteht zwischen Dachhaut und Dämmung ein Luftspalt.
Infobox
Satteldächer werden zudem anhand ihres Dachflächenwinkels voneinander unterschieden, wobei es eine symmetrische und eine asymmetrische Variante gibt. Bei dem symmetrischen Satteldach ist der Winkel beider Dachflächen am Dachfirst identisch, beim asymmetrischen fällt der Neigungswinkel anders aus. Auch die Sparren können verschiedene Längen aufweisen, was als Ergebnis zu zwei unterschiedlich großen Dachflächen führt.
Welche Neigung hat ein Satteldach? – Berücksichtigung der Dachneigung
In Sachen Dachneigung und Traufhöhe sind Satteldächer flexibel planbar, damit bieten sie zukünftigen Eigenheimbesitzern eine Vielzahl an Gestaltungsmöglichkeiten. Mit der Wahl des richtigen Neigungswinkels beim Satteldach sind sie außerdem sehr wetterbeständig und kommen in Gegenden mit häufig starken Winden und Regen ebenso zum Einsatz wie in bergigen Gebieten, in denen im Winter viel Schnee fällt. Schützt ein steiler Neigungsgrad des Dachs im ersten Fall vor Wasserschäden, verringert ein geringer Neigungsgrad im zweiten Fall die Gefahr eines unkontrollierten Abgangs der Schneemassen. So lassen sich Satteldachkonstruktionen optimal an die klimatischen Bedingungen der jeweiligen Region anpassen – das macht sie in Deutschland, Österreich und in der Schweiz gleichermaßen beliebt.Infobox
Wohnen Sie in einer sehr schneereichen Gegend, ist die Ausstattung von Garagen und Carports mit einem kleinen Satteldach ebenfalls eine Überlegung wert. Denn die sonst gängigen Flachdächer (interne Verlinkung), haben mit Schneemassen schnell zu kämpfen. Wird die Dachfläche nicht zügig geräumt, kann sie unter dem Gewicht Schaden nehmen. Dem wirken Sie mit einem Satteldach entgegen.
Zu den eher flach gehaltenen Satteldächern zählen wir solche mit einem Neigungswinkel von circa 30 Grad. Die etwas steilere norddeutsche Form hat oft einen exakten 45-Grad-Winkel und das sogenannte altfränkische Satteldach wartet sogar mit einer Neigung von ganzen 60 Grad auf. Die am häufigsten gewählte Variante liegt zwischen 38 und 45 Grad, da sich bei diesem Neigungsbereich bereits ausreichend Platz für den Ausbau eines Dachgeschosses bietet und das Kosten-/Nutzenverhältnis am ausgewogensten ist. Denn je größer die Dachneigung, desto mehr Material wird für die Herstellung benötigt, was die Kosten in die Höhe treibt.
Infobox
Die Höhe einer Wand im Dachgeschoss vom Boden bis zur Dachschräge wird als Kniestock bezeichnet. Von der Kniestockhöhe ist also der nutzbare Wohnraum unter dem Dach abhängig. Bei einer Änderung der Kniestockhöhe verändert sich ebenso der Wohnraum des Dachgeschosses.
Welche Dachneigung bei Ihrem speziellen Bauvorhaben zulässig ist, hängt von den in Ihrem Gebiet geltenden baurechtlichen Vorgaben ab, die im Bebauungsplan festgelegt und jederzeit frei einsehbar sind. Bevor Sie sich also gemeinsam mit dem Fertighausanbieter Ihrer Wahl an die Dachplanung machen, empfiehlt sich diesbezüglich ein vorheriger Check. In einigen Regionen sind auch Maximalhöhen für Dachfirst und Traufe geregelt, die Sie nicht überschreiten dürfen. Ist dies bei Ihnen der Fall, müssten Sie die Dachneigung des Satteldachs flacher gestalten, selbst wenn dadurch Wohnfläche verloren geht.
Was ist die beste Eindeckung und Dämmung für Satteldächer?
Die gängigste Eindeckung bei Satteldächern sind Dachziegel und Dachpfannen. Diese ist jedoch nicht verpflichtend, denn möglich ist hier so ziemlich alles. Schiefer wirkt beispielsweise sehr ansprechend und mit Metalleindeckungen aus Aluminium, Kupfer oder Zink erzielen Sie eine besonders außergewöhnliche Optik, die individuelle Akzente setzt. Metalldächer haben zudem den Vorteil, dass sie nahezu wartungsfrei sind und sogar schwersten Unwettern trotzen. Allerdings benötigen sie in Sachen Blitzschutz eine fachgerecht angelegte Erdung und auch bei der Wärmedämmung wird es mit ihnen etwas komplizierter.Infobox
Dachbegrünungen liegen zwar voll im Trend, kommen bei Satteldächern aufgrund der meist zu steilen Neigung in der Regel aber nicht infrage. Sie sind nur eine Option, wenn der Winkel unter 15 Grad bleibt, was bei dieser Dachart eher unüblich ist.
Bei einem ausgebauten und bewohnten Dachgeschoss gibt es wie bei allen Steildächern auch beim Satteldach drei Arten der Wärmedämmung: Entweder die Aufsparrendämmung, die Zwischendämmung, die Untersparrendämmung oder eine Kombination dieser Möglichkeiten. Viele Häuslebauer entscheiden sich letztendlich für die praktische Aufsparrendämmung, da sie am unkompliziertesten ist und der Anschluss des Dachs an den Baukörper ohne Wärmebrücken funktioniert. Ein Schornstein kann bei vollem Erhalt der Abdichtung auf Wunsch ausgespart werden. Möchten Sie die Fläche unter dem Dach lediglich als Lager und nicht als Wohnraum nutzen? Dann reicht eine Dämmung aus Holzfaser oder Holzwolle zwischen Dachboden und Obergeschoss, was die Kosten deutlich senkt, aber im Gegenzug Wohnfläche und Komfort kostet.
Kann man mit einem Satteldach energiesparend und nachhaltig Leben?
Moderne Fertighäuser mit Satteldächern sind clever konstruiert und sorgen mit hochwertigen Materialien für eine ausgezeichnete Wärmedämmung, die die im Gebäudeenergiegesetz (GEG) vorgeschriebenen Grenzwerte meist sogar weit unterschreitet. So können Sie die verschiedensten Energiestandards erreichen und mit einer hervorragenden Ökobilanz punkten. Giebeldächer sind aufgrund ihrer geneigten Dachflächen außerdem besonders gut für die Installation einer Fotovoltaikanlage geeignet. Die Solarthermie ist eine weitere attraktive Möglichkeit und reduziert die Kosten für fossile Brennstoffe zum Heizen und zur Warmwasseraufbereitung deutlich. Um solche Anlagen wirtschaftlich und effizient betreiben zu können, ist eine Südausrichtung und eine Dachneigung zwischen 30 und 35 Grad optimal und wird von Experten empfohlen. Eine Ost-West-Ausrichtung ist auch machbar und beeinträchtigt die Erträge nur geringfügig, insofern es keine Verschattung durch Bäume oder umliegende Gebäude gibt.Infobox
Die Anschaffung einer Fotovoltaikanlage wird vom Staat durch Fördermittel unterstützt. Wichtig dabei: Um die Gelder zu erhalten, müssen Sie ein professionelles Handwerksunternehmen mit den Arbeiten beauftragen. Reichen Sie Ihren Antrag auf Förderung aber unbedingt ein, bevor Sie den Vertrag mit einem Handwerker abschließen. Geht er nachträglich ein, können die zuständigen Stellen ihn ansonsten ablehnen.

Life 12

generation5.5, 150 (Heinemann)

LifeStyle 18.07 S

Haas MH Fellbach 163

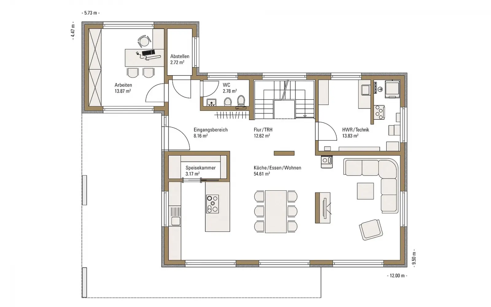
Modern 191

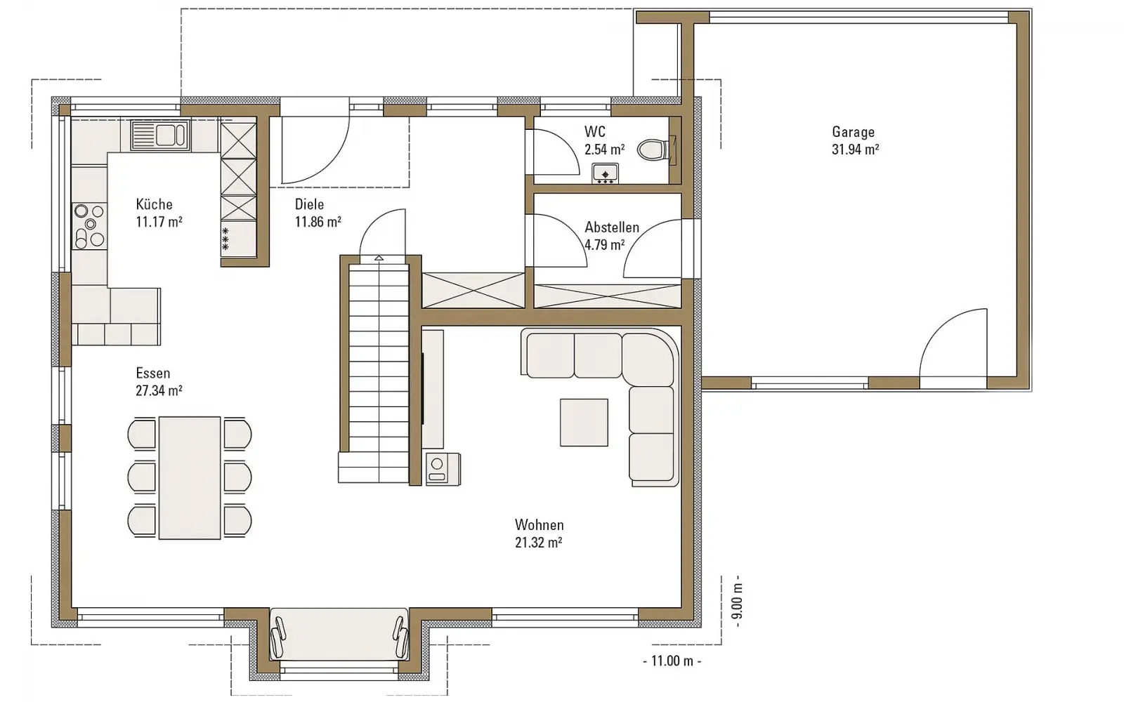
Homestory 785
Vorteile und Nachteile von Satteldächern
Mit einem Satteldach entscheiden Sie sich für eine kostengünstige und altbewährte Dachform, die einige Vorteile mit sich bringt. Jedoch sollten Sie auch die Nachteile dieses Dachaufbaus in Ihren finalen Entschluss mit einbeziehen.Was sind die Vorteile eines Satteldachs?
- Das Satteldach ist sehr robust und wetterbeständig
- Im Vergleich zu anderen Dachformen hat das Satteldach eine relativ einfache Konstruktion und ist entsprechend preisgünstig
- Ein Satteldach benötigt wenig Wartungs- und Pflegeaufwand
- Flexible Gestaltung des Satteldachs
- Bei einem Satteldach ist die Eindeckung mit umweltfreundlichen Naturmaterialien möglich
- Bauliche Sonderwünsche wie etwa Gauben sind bei einem Satteldach problemlos umsetzbar
- Satteldächer ermöglichen einen gemütlichen Sichtdachstuhl
- Das Satteldach ist sehr gut für die Installation von Fotovoltaikanlagen geeignet
Was sind die Nachteile eines Satteldachs?
- Durch Schrägen auf zwei Seiten bietet ein Satteldach weniger nutzbaren Wohnraum mit eingeschränkter Stellfläche im Dachgeschoss
- Beim Satteldach dringt Helligkeit nur durch die Dachfenster – damit geringerer Tageslichteinfall als bei vollwertigen Geschossen