Einfamilienhaus: Fertighaus-Landhaus im nordischen Stil - Lautrach
Lautrach
Hausinfo Lautrach
Das Haus Lautrach von Regnauer ist ein Landhaus im nordischen Stil mit einer Fläche von 136,00 m² auf 1,5 Etagen. Die Wohnfläche teilt sich auf 7 Zimmer auf, davon 3 Schlafzimmer.Dieses Einfamilienhaus mit Satteldach wird in der Bauweise Fertighaus errichtet und erfüllt den Energiestandard BEG Effizienzhaus 40 EE.
Den Preis in der Ausbaustufe Ausbauhaus erhalten Sie auf Anfrage vom Hersteller. Der schlüsselfertige Hauspreis beträgt laut Hersteller ab 503.810€.
Der Haushersteller Regnauer mit Sitz in Seebruck am Chiemsee/Deutschland ist seit 1929 aktiv.
Regnauer baut Ihr Fertighaus-Traumhaus Lautrach in den folgenden Bundesländern: Baden-Württemberg, Bayern, Berlin, Brandenburg, Bremen, Hamburg, Hessen, Mecklenburg-Vorpommern, Niedersachsen, Nordrhein-Westfalen, Rheinland-Pfalz, Saarland, Sachsen, Sachsen-Anhalt, Schleswig-Holstein, Thüringen.
Außerhalb Deutschlands kann das Haus in der Schweiz, Österreich, gebaut werden.
Bautafel
Hausname | Lautrach |
---|---|
Preis | Ausbauhaus auf Anfrage schlüsselfertig ab 503.810 € |
Bauweise | Fertighaus |
Dachform | Satteldach |
Dachneigung | 25° |
Kniestock | 145 cm |
Haustyp | Landhaus |
Hausstil | Nordisch |
Verwendung | Einfamilienhaus |
Energiestandard | BEG Effizienzhaus 40 EE |
Preisübersicht
Lautrach
Schlüsselfertig
Preis ab 503.810 €
Ausführung gemäß aktueller Regnauer Bauleistungs- und Ausstattungsbeschreibung.
Weitere Informationen auf www.regnauer.de. Abbildungen können Sonderausstattung zeigen.
Regnauer Hausbau legt großen Wert darauf, Ihr Vitalhaus ganz nach Ihren persönlichen Wünschen zu gestalten. Gemäß Ihren Wünschen und Ihrer Grundstückssituation ergibt sich dann ein exakter Festpreis für Ihr Traumhaus. Daher beziehen sich die Preise auf eine Vitalausstattung ohne spezifische Sonderausstattung.
Voraussetzung zur Erlangung der Bundesförderung für Effiziente Gebäude (BEG) ist die Einhaltung der diesbezüglichen Förderrichtlinien. So wird hierfür unter anderem die Ausführung einer förderfähigen Haustechnik sowie die entsprechende Ausführung der bauherrenseitigen Leistungen (z.B. Keller und -ausbau) vorausgesetzt. Die Förderrichtlinien sind auch Änderungen unterworfen, sodass die Förderfähigkeit jeweils im Einzelfall geprüft und objektspezifisch durch das Förderinstitut bestätigt werden muss. Auch können einzelne Programme ausgesetzt oder verändert werden. Die Regnauer Hausbau GmbH & Co KG kann keine Finanzierungs- oder Förderberatung durchführen.
Ausbauhaus
a.A.
Diesen Preis erfahren Sie auf Anfrage vom Hersteller.
Bausatzhaus
-
In dieser Ausbaustufe ist das Haus leider nicht verfügbar.
Jetzt kostenlos Infos zum Haus anfordern!

Wo baut Regnauer das Haus Lautrach?
In den folgenden Bundesländern / Ländern kann das Haus gebaut werden:
Dunkle Tonziegel, eine graue Schalung aus Holz, weiße Fenster. Dazu ein mit 26 Grad sanft geneigtes Satteldach, das als weit ausladendes Vordach ausläuft und an der Unterseite weiß angestrichen ist: Dieses Haus könnte auch in Finnland stehen. So sehr entspricht es dem Traum vom Wohnen im nordischen Wohnstil. Die darin lebende junge Familie entschied sich schon der Kinder wegen bewusst für ein ökologisches Vitalhaus in einer Massivholz-Riegel-Konstruktion. Auch die Außenhaut wünschten sich die jungen Eltern aus Holz. Und als Dämmstoff wählten sie Holzfasern, die als nachwachsendes Baumaterial absolut umweltverträglich und biologisch abbaubar sind.
Ausführung gemäß aktueller Regnauer Bauleistungs- und Ausstattungsbeschreibung.
Abbildungen können Sonderausstattung zeigen.
Wir legen großen Wert darauf, Ihr Vitalhaus ganz nach Ihren persönlichen Wünschen zu gestalten.
Gemäß Ihren Wünschen und Ihrer Grundstückssituation ergibt sich dann ein exakter Festpreis für Ihr Traumhaus. Daher beziehen sich die Preise auf eine Vitalausstattung ohne spezifische Sonderausstattung.
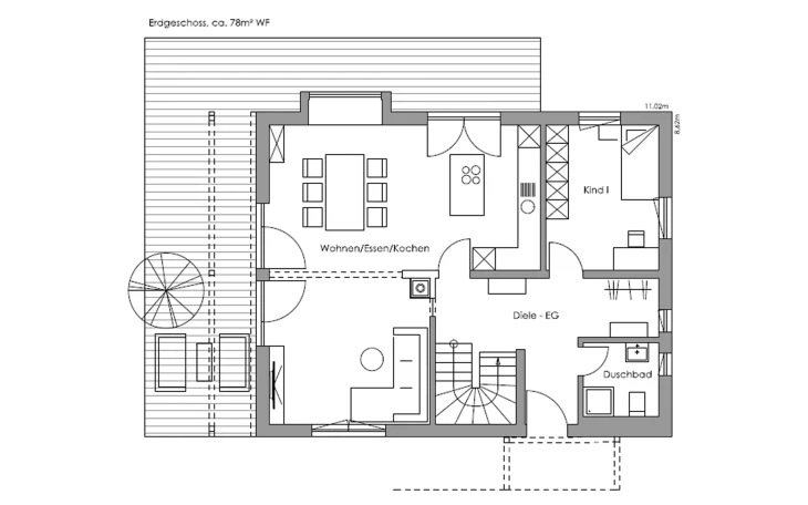
Grundrisse und Hausmaße
Etagen | 1,5 |
---|---|
Zimmer | 7 / 3 Schlafzimmer |
Wohnfläche | 136,00 m² |
Abmessungen | 11,00 m x 8,60 m |
Welche Serviceleistungen bietet Regnauer an?
Bauherren erhalten folgende Leistungen von Regnauer:
Weitere Häuser von Regnauer

Regnauer Hausbau GmbH & Co. KG
Pullacher Straße 11
83358 Seebruck am Chiemsee
Deutschland