Einfamilienhaus: Massivhaus-Familienhaus im modernen Stil - Konstanz
Konstanz
Hausinfo Konstanz
Das Haus Konstanz von HELMA ist ein Familienhaus im modernen Stil mit einer Fläche von 175,00 m² auf 1,5 Etagen. Die Wohnfläche teilt sich auf 6 Zimmer auf, davon 3 Schlafzimmer.Dieses Einfamilienhaus mit Satteldach wird in der Bauweise Massivhaus errichtet und erfüllt den Energiestandard Effizienzhaus 55 EE.
Den Preis in der Ausbaustufe Ausbauhaus erhalten Sie auf Anfrage vom Hersteller. Der schlüsselfertige Hauspreis beträgt laut Hersteller ab 400.250€.
Der Haushersteller HELMA mit Sitz in Lehrte/Deutschland ist seit 1980 aktiv und hat bisher mehr als 21.000 Häuser für zufriedene Baufamilien gebaut.
HELMA baut Ihr Massivhaus-Traumhaus Konstanz in den folgenden Bundesländern: Baden-Württemberg, Bayern, Berlin, Brandenburg, Bremen, Hamburg, Hessen, Mecklenburg-Vorpommern, Niedersachsen, Nordrhein-Westfalen, Rheinland-Pfalz, Sachsen, Sachsen-Anhalt, Schleswig-Holstein, Thüringen.
Bautafel
Hausname | Konstanz |
---|---|
Preis | Ausbauhaus auf Anfrage schlüsselfertig ab 400.250 € |
Bauweise | Massivhaus |
Dachform | Satteldach |
Dachneigung | 20° |
Kniestock | 212,50 cm |
Haustyp | Familienhaus |
Hausstil | Modern |
Verwendung | Einfamilienhaus |
Energiestandard | Effizienzhaus 55 EE |
Preisübersicht
Konstanz
Schlüsselfertig
Preis ab 400.250 €
Der angegebene "ab Preis" bezieht sich auf die "Region Nord". Detaillierte Preise und Informationen zur Ihrer Region erhalten Sie gern auf Anfrage.
Ausbauhaus
a.A.
Diesen Preis erfahren Sie auf Anfrage vom Hersteller.
Bausatzhaus
-
In dieser Ausbaustufe ist das Haus leider nicht verfügbar.
Jetzt kostenlos Infos zum Haus anfordern!

Wo baut HELMA das Haus Konstanz?
In den folgenden Bundesländern / Ländern kann das Haus gebaut werden:
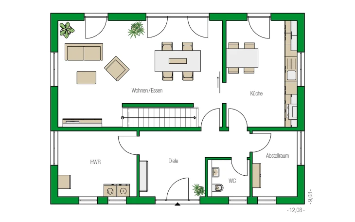
Grundrisse und Hausmaße
Etagen | 1,5 |
---|---|
Zimmer | 6 / 3 Schlafzimmer |
Wohnfläche | 175,00 m² |
Nutzfläche | 178,00 m² |
Abmessungen | 12,08 m x 9,08 m |
Welche Serviceleistungen bietet HELMA an?
Bauherren erhalten folgende Leistungen von HELMA:
Weitere Häuser von HELMA

HELMA Eigenheimbau AG
Zum Meersefeld 4
31275 Lehrte
Deutschland