Friesenhaus bauen – Wohngefühl von Wind und Meer

An der Nordsee finden sich sehr viele der charmanten Gebäude mit den stattlichen Giebeln und oft reetgedeckten Dächern. Doch auch in allen anderen Teilen Deutschlands ist dieser Haustyp immer weiter auf dem Vormarsch. Und das hat einen guten Grund: Urlaubsfeeling an 365 Tagen im Jahr! Holen Sie sich mit dem Bau eines Friesenhauses das entspannte Feriengefühl aus dem hohen Norden geradewegs in die eigenen vier Wände.

Was ist ein Friesenhaus?

Traditionelle Friesenhäuser werden seit dem 17. Jahrhundert an der Nordseeküste meist zweigeschossig in Holzständerbauweise errichtet und mit einem steilen Reetdach versehen. Sie sind ebenfalls unter dem Begriff Kapitänshäuser bekannt und fallen insbesondere durch einen hervorstehenden, spitz zulaufenden Giebel auf. Durch ihn entsteht ein Vorsprung, der häufig als Überdachung des Eingangs dient. Es gibt Friesenhäuser inzwischen auch in der modernen Variante, die sich den Anforderungen der heutigen Zeit zwar anpasst, dabei jedoch wenig von dem ursprünglichen Reiz einbüßt. Gemein haben beide Stile eine gemütliche Wohnatmosphäre und das Gefühl der Freiheit des weiten Meeres.
Friesenhaus Select 128 von FAVORIT
Friesenhaus Select 128 von FAVORIT Infos zum Haus

Select 128
Friesenhaus Hamburg von HELMA
Friesenhaus Hamburg von HELMA Infos zum Haus

Hamburg
Friesenhaus VarioFamily 160 von VarioSelf
Friesenhaus VarioFamily 160 von VarioSelf Infos zum Haus

VarioFamily 160
Friesenhaus Billund von Danhaus
Friesenhaus Billund von Danhaus Infos zum Haus

Billund

Was ist ein Friesengiebel?

Das wohl markanteste Merkmal von Friesenhäusern ist der namensgebende hohe Friesengiebel (auch Kapitänsgiebel genannt) an der Vorderseite des Hauses über dem Eingang. Seine höchste Stelle reicht bis zur Dachtraufe und seine Dachflächen gehen vollständig in das Hauptdach über. Originär erzeugte der lang gezogene Friesengiebel erhöhte Sicherheit im Brandfall. Da diese Art der Häuser früher ausschließlich mit Reet eingedeckt waren, fiel das brennende Material nicht direkt vor den Hauseingang, sondern rutschte seitlich weg – so blieb der Fluchtweg nach vorn hin frei. Regen und Schnee wurden auf diese Weise ebenfalls ausgezeichnet abgeleitet. In heutigen Tagen ist der Friesengiebel weiterhin mehr als ein architektonisches Stilmittel, selbst wenn die Reeteindeckung inzwischen oft durch Ziegel ersetzt wird: Er schafft zusätzlichen Platz unter dem Dach und sorgt gleichzeitig für viel Tageslicht im Obergeschoss.

 

Friesenhaus Grundriss – kleine Besonderheiten

Der Grundriss von Friesenhäusern folgt meist einem klassischen Muster: geräumiger Wohnbereich, Küche und kleines Bad im Erdgeschoss, alle Privaträume im Obergeschoss. So entstehen perfekte Rückzugsräume für die wohlverdiente Entspannung. Zusätzliche Highlights und Anbauten wie etwa ein Balkon, eine Terrasse oder eine Garage sind selbstverständlich problemlos möglich.

Friesenhäuser punkten dank des Friesengiebels mit zusätzlicher Wohnfläche. Hierbei können Sie den dazugewonnenen Raum in unterschiedlichsten Formen nutzen. Eine Möglichkeit ist beispielsweise die Unterbringung der Treppe an dieser Stelle, die Sie ins Obergeschoss führt. Im äußeren Eingangsbereich sorgt der Giebelvorsprung für Schutz vor ungemütlichen Wetter und bietet sich durch die regengeschützte Zusatzfläche ebenso für friesenhaustypische Dekorationen an. Außerdem ist der Friesengiebel als kleine Galerie oder Erker mit großen Fenstern umsetzbar – für das Plus an Tageslicht im Innenbereich. 

Im Folgenden finden Sie einige Grundriss-Beispiele für Friesenhäuser, die Sie jedoch gemeinsam mit dem jeweiligen Haushersteller abwandeln, anpassen oder gänzlich neu planen können. Für die meisten Wünsche halten die Anbieter Musterlösungen parat, die clever durchdacht und zudem preiswert sind.
 
Grundriss Friesenhaus VarioFamily 160 von VarioSelf
Friesenhaus VarioFamily 160 von VarioSelf

VarioFamily 160
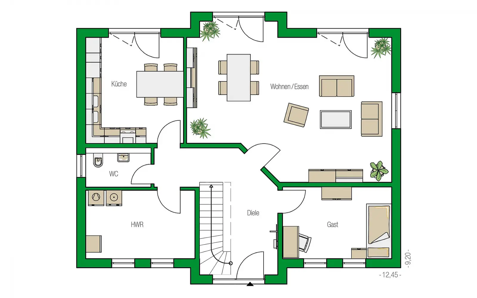
Grundriss Friesenhaus Hamburg von HELMA
Friesenhaus Hamburg von HELMA

Hamburg
Grundriss Friesenhaus Billund von Danhaus
Friesenhaus Billund von Danhaus

Billund
Grundriss Friesenhaus Select 128 von FAVORIT
Friesenhaus Select 128 von FAVORIT

Select 128

Wie sieht ein Friesenhaus aus?

Die Grundfläche in einem Friesenhaus ist meist rechteckig, die Raumaufteilung individuell planbar. Für den Hausaufbau und die Außengestaltung bieten sich klassische rote Ziegelsteine ebenso an wie verschiedenfarbiger Klinker oder das schlichte Verputzen der Außenwände. Der Friesen- bzw. Kapitänsgiebel über dem Eingang ist und bleibt für das Friesenhaus jedoch das charakteristische Merkmal und erinnert manchmal an ein mittig in das Gebäude eingelassenes Türmchen. In diesem Gebäudeteil ist oft die Treppe ins Obergeschoss untergebracht.

Die Haustür befindet sich unter dem Giebelvorsprung, ist tendenziell groß gehalten und sollte schlussendlich zum gesamten Erscheinungsbild des Friesenhauses passen. Gleiches gilt für die Fenster. Wobei sich die Optik moderner Friesenhäuser in einigen Punkten von denen, die nach traditionellem Entwurf erbaut werden, unterscheidet. Die moderne Form kommt häufig mit einer einfarbigen Putzfassade und großen Fenstern daher, während die traditionelle Ausführung eher auf kleine Sprossenfenster setzt.

Welche Dachformen werden für ein Friesenhaus genutzt?

Typischerweise sind Friesenhäuser mit Reetdächern ausgestattet. Dieser Weichdachtyp besticht durch eine Eindeckung mit den natürlichen Materialien des Schilfrohrs. Hier sollten Sie allerdings die in Ihrer Region vorgegebenen Bauvorschriften in die Planung mit einbeziehen. Abhängig von der Anordnung eventueller Nebengebäude oder Nachbargrundstücke ist hier meist ein bestimmter Mindestabstand einzuhalten, der sich von Bundesland zu Bundesland unterscheidet. Die Regelungen schwanken hier zwischen unter zehn und weit über zwanzig Metern, sodass eine vorherige Erkundigung, was genau in Ihrem Fall zutrifft, unbedingt notwendig ist. Auch ist die Haltbarkeit von Reetdächern überschaubar, weshalb sie wesentlich früher als moderne Dachformen komplett erneuert werden müssen. 

Aus diesen Gründen haben sich als Dacheindeckung bei Neubauten, aber auch im Zuge einer ohnehin anstehenden Dachsanierung bei Bestandsbauten, Ziegel durchgesetzt. Um das Friesenhausdesign trotzdem zu erhalten, kommen hier als Formgebung das Walm- oder Krüppelwalmdach in Frage. Alternativ sind der Satteldach-Klassiker und das Zwerchdach weitere Optionen und immer eine Überlegung wert. 

Gut zu wissen: Ein Blick in den Bebauungsplan ist vor Planungsstart grundsätzlich anzuraten, da in manchen Gebieten der Bau bestimmter Haustypen generell nicht erlaubt oder mit Beschränkungen verbunden ist.

Wie viel kostet ein Friesenhaus?

Grundsätzlich ist ein Friesenhaus für jedes Budget geeignet, jedoch kommt es letztendlich auf die Größe der Wohnfläche sowie auf die Ausstattung an. Der Bau eines klassischen Friesengiebels ist um einiges umfangreicher als der eines einfachen Satteldachs und damit naturgemäß teurer. Die Entscheidung für ein traditionelles Reetdach aus Schilfrohr kann die Baukosten ebenfalls empfindlich erhöhen, da dieser Dachtyp schärferen Bestimmungen unterliegt und Spezialisten im Bereich von Reetdächern hier Hand anlegen müssen. Nicht jeder Dachdecker ist in der Lage, ein Reetdach korrekt und sicher einzudecken. Darüber hinaus ist ein ausgebauter Keller hochpreisiger als eine Bodenplatte ohne Untergeschoss – da lohnt sich in Sachen Stauraum aus Kostengründen vielleicht eher ein Blick auf den möglichen Ausbau des Spitzbodens.

Der Unterschied zwischen der Errichtung in Massivbauweise oder als Friesenhaus Fertighaus ist optisch am Ende nicht mehr erkennbar. Die Fertigbauweise hat jedoch den Vorteil einer zeitlich und finanziell besseren Planbarkeit.

Welche Hersteller bauen Friesenhäuser?

Schauen Sie sich hier die verschiedenen Modelle der Friesenhaus-Hersteller mit weiteren Grundrissen, Hausbildern, Einrichtungsbeispielen und den Preisen der unterschiedlichen Ausbaustufen an.

Alle Friesenhäuser in der Übersicht!

Jetzt vergleichen!

0