Einfamilienhaus: Fertighaus-Familienhaus im klassischen Stil - Maximilian 142
Maximilian 142
Hausinfo Maximilian 142
Das Haus Maximilian 142 von Albert-Haus ist ein Familienhaus im klassischen Stil mit einer Fläche von 122,21 m² auf 1,5 Etagen. Die Wohnfläche teilt sich auf 4 Zimmer auf, davon 3 Schlafzimmer.Dieses Einfamilienhaus mit Satteldach wird in der Bauweise Fertighaus errichtet und erfüllt den Energiestandard Effizienzhaus 55.
Als Ausbauhaus beginnt der Hauspreis ab 113.000€. Der schlüsselfertige Hauspreis beträgt laut Hersteller ab 176.670€.
Der Haushersteller Albert-Haus mit Sitz in Burkardroth/Deutschland ist seit 1933 aktiv.
Albert-Haus baut Ihr Fertighaus-Traumhaus Maximilian 142 in den folgenden Bundesländern: Baden-Württemberg, Bayern, Berlin, Brandenburg, Bremen, Hamburg, Hessen, Mecklenburg-Vorpommern, Niedersachsen, Nordrhein-Westfalen, Rheinland-Pfalz, Saarland, Sachsen, Sachsen-Anhalt, Schleswig-Holstein, Thüringen.
Bautafel
Hausname | Maximilian 142 |
---|---|
Preis | Ausbauhaus ab 113.000 €
schlüsselfertig ab 176.670 € |
Bauweise | Fertighaus |
Dachform | Satteldach |
Dachneigung | 42° |
Haustyp | Familienhaus |
Hausstil | Klassisch |
Verwendung | Einfamilienhaus |
Energiestandard | Effizienzhaus 55 |
Preisübersicht
Maximilian 142
Schlüsselfertig
Preis ab 176.670 €
Alle Preise laut Hersteller als "ab"-Preise. Fehler oder Änderungen vorbehalten.
Ausbauhaus
Preis ab 113.000 €
Alle Preise laut Hersteller als "ab"-Preise. Fehler oder Änderungen vorbehalten.
Bausatzhaus
-
In dieser Ausbaustufe ist das Haus leider nicht verfügbar.
Jetzt kostenlos Infos zum Haus anfordern!

Wo baut Albert-Haus das Haus Maximilian 142?
In den folgenden Bundesländern / Ländern kann das Haus gebaut werden:
Preis inkl. Basisküche Warendorf und inkl. dezentrale Be-und Entlüftung von Marley.
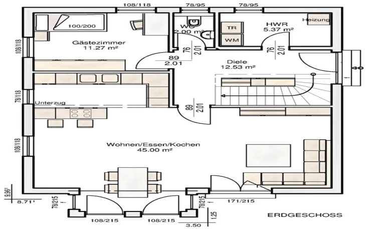
Grundrisse und Hausmaße
Etagen | 1,5 |
---|---|
Zimmer | 4 / 3 Schlafzimmer |
Wohnfläche | 122,21 m² |
Nutzfläche | 127,58 m² |
Welche Serviceleistungen bietet Albert-Haus an?
Bauherren erhalten folgende Leistungen von Albert-Haus:
Weitere Häuser von Albert-Haus

Albert-Haus GmbH & Co. KG
Hohenackerstr. 23
97705 Burkardroth
Deutschland